Daniel,
Vilnius
2026-05-05
Griovimo darbai, rekia nugriauti nama
Sveiki, domina griovimo darbai, Vilniuje. Apie 260 m2
Nuotraukas ir detalesne informacija pateiksiu privaciai
Nuotraukas ir detalesne informacija pateiksiu privaciai
Daniel
Vilnius
Viktorija,
Vilnius
2026-05-05
Skalda, smėlis, žvyras, juodžemis
Vilniuje su pristatymu reiktų apie 20 kg smėlio ir 200-300 litrų žemės, tinkamos daržovių ir gėlių sodinimui lauke. Viskas būtinai turi būti supakuota į maišus (netinka tiesiog krūvos atvežimas).
Viktorija
Vilnius
Aleks B.,
Vilnius
2026-05-05
Ekskavatoriaus nuoma
Reika iškasti sena kanalizacini vamždi 2 metru gilije +- 80 cm pločio apie 4-5 ilgio tranšėjų
Vieta randasi vosiliuku kaime
Vieta randasi vosiliuku kaime
Aleks B.
Vilnius
Gerda S.,
Vilnius
2026-05-05
1
Stogines - pergolos irengimas
Sveiki, reikalinga stogine - pergola, preliminariai 4 x 7m. Vilnius. Prasau pateikti pasiulymus su kainomis ir terminais
Gerda S.
Vilnius
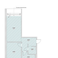
Edgar,
Vilnius
2026-05-05
1
Patalpos (prieškambaris, virtuvė, svetainė) perdažymas (sienos/lubos/plintusai)
- Sienų dažymas
- Lubų dažymas
- Lubose reikia išpjauti didesnes skyles šviestuvams
- Angokrasčių dažymas
- Plintusų perdažymas
Prisegu brėžinį. Raudonai pažymėtos sienos bus dažomos. Lubos - visoje patalpoje, kur yra pažymėtos sienos.
- Lubų dažymas
- Lubose reikia išpjauti didesnes skyles šviestuvams
- Angokrasčių dažymas
- Plintusų perdažymas
Prisegu brėžinį. Raudonai pažymėtos sienos bus dažomos. Lubos - visoje patalpoje, kur yra pažymėtos sienos.
Edgar
Vilnius
Tabas T.,
Vilnius
2026-05-05
Plyteliu klijavimas
Sveiki,
noriu vietoj vonios padaryti dusa.
ieskau kas galetu iskloti plyteles kur stovejo vonia ir ant zemes su nuolydziu ir trapu.
Taip pat reiketu pamuryti sienele su silikatine plyta kur pazymeta raudonai ir apklijuoti plytele.
Viso klijavimo apie 5m2 grubiai
Vonia VISPOOL https://www.vonio...
noriu vietoj vonios padaryti dusa.
ieskau kas galetu iskloti plyteles kur stovejo vonia ir ant zemes su nuolydziu ir trapu.
Taip pat reiketu pamuryti sienele su silikatine plyta kur pazymeta raudonai ir apklijuoti plytele.
Viso klijavimo apie 5m2 grubiai
Vonia VISPOOL https://www.vonio...
Žiūrėti daugiau »
Sveiki,
noriu vietoj vonios padaryti dusa.
ieskau kas galetu iskloti plyteles kur stovejo vonia ir ant zemes su nuolydziu ir trapu.
Taip pat reiketu pamuryti sienele su silikatine plyta kur pazymeta raudonai ir apklijuoti plytele.
Viso klijavimo apie 5m2 grubiai
Vonia VISPOOL https://www.voniossprendimai.lt/vispool-classica-akmens-mases-vonia-170-x-75-cm-su-sifonu-balta
puikaus stovio, su dangciu priekiniu, galeciau perleisti kaip dali barteriu.
Objektas Salininkuose, skubos nera.
Kas galite ir kokia +- kaina uz darba?
noriu vietoj vonios padaryti dusa.
ieskau kas galetu iskloti plyteles kur stovejo vonia ir ant zemes su nuolydziu ir trapu.
Taip pat reiketu pamuryti sienele su silikatine plyta kur pazymeta raudonai ir apklijuoti plytele.
Viso klijavimo apie 5m2 grubiai
Vonia VISPOOL https://www.voniossprendimai.lt/vispool-classica-akmens-mases-vonia-170-x-75-cm-su-sifonu-balta
puikaus stovio, su dangciu priekiniu, galeciau perleisti kaip dali barteriu.
Objektas Salininkuose, skubos nera.
Kas galite ir kokia +- kaina uz darba?
Tabas T.
Vilnius
Edgar,
Vilnius
2026-05-05
2
Slenksčio tarp balkono ir buto apšiltinimas
Reikalingas slenksčio tarp balkono ir buto apšiltinimas. Problema: žiemą pastoviai šaltos grindys. 2 aukštas
Edgar
Vilnius
Daiva,
Vilnius
2026-05-05
Nuotekų išvežimas
Reikia išvežti nuotekas iš lauko tualeto, tualetą pilnai išplauti ir sutvarkyti naudojimui. Vilnius, Vaduvos (nuasmeninta).
Daiva
Vilnius
Justas G.,
Vilnius
2026-05-04
Fasado šiltinimas, individualus namas
Individualus namas 2 aukštų. Namas 6x6. Reikalingas pilnas fasado apšiltinimas.
Justas G.
Vilnius
MB S.,
Vilnius
2026-05-04
Ieškome dažytojų Vilniuje ir rajone
Ieškome patyrusių dažytojų darbui naujos statybos namuose Vilniaus mieste ir rajonuose.
💶 Mokame nuo 13 €/m² (pavedimu)
📄 Būtina išrašyti sąskaitą faktūrą
⚡ Apmokėjimas greitas
❌ Avansų nemokame
🧱 Visomis medžiagomis aprūpiname
🏠 Turime daug objektų – galimas ilgalaikis bendradarbiavimas
🚀 ...
💶 Mokame nuo 13 €/m² (pavedimu)
📄 Būtina išrašyti sąskaitą faktūrą
⚡ Apmokėjimas greitas
❌ Avansų nemokame
🧱 Visomis medžiagomis aprūpiname
🏠 Turime daug objektų – galimas ilgalaikis bendradarbiavimas
🚀 ...
Žiūrėti daugiau »
Ieškome patyrusių dažytojų darbui naujos statybos namuose Vilniaus mieste ir rajonuose.
💶 Mokame nuo 13 €/m² (pavedimu)
📄 Būtina išrašyti sąskaitą faktūrą
⚡ Apmokėjimas greitas
❌ Avansų nemokame
🧱 Visomis medžiagomis aprūpiname
🏠 Turime daug objektų – galimas ilgalaikis bendradarbiavimas
🚀 Darbus galima pradėti iš karto
Ieškome atsakingų, kruopščiai ir kokybiškai dirbančių meistrų.
📞 Susisiekite – galime pasiūlyti darbus iš karto!
💶 Mokame nuo 13 €/m² (pavedimu)
📄 Būtina išrašyti sąskaitą faktūrą
⚡ Apmokėjimas greitas
❌ Avansų nemokame
🧱 Visomis medžiagomis aprūpiname
🏠 Turime daug objektų – galimas ilgalaikis bendradarbiavimas
🚀 Darbus galima pradėti iš karto
Ieškome atsakingų, kruopščiai ir kokybiškai dirbančių meistrų.
📞 Susisiekite – galime pasiūlyti darbus iš karto!
MB S.
Vilnius
Matas,
Vilnius
2026-05-04
Plytelių klijavimas
Sveiki, reikia užklijuoti plyteles vonios kambaryje. Nedidelis plotas
Matas
Vilnius
Vaidas,
Vilnius
2026-05-04
Nuotekų valymo įrenginiai
Sveiki, reikia irengti du valymo irenginius dviem namam, namui po 3-4zmones skaiciuojam, taip pat ir lietaus nuotekom irengti sulinius. Taip pat reik ir grezinio, vieno ant dvieju namu.
Objektai vilniuje, pilaiteje. privaziavimas geras. lauksiu pasiulymu.
Objektai vilniuje, pilaiteje. privaziavimas geras. lauksiu pasiulymu.
Vaidas
Vilnius
Jolanta,
Vilnius
2026-05-04
Ieškau betonuotojų
Ieškome specialistų kurie galėtų garaže užlieti pramonines grindis 72kw
Jolanta
Vilnius
Archikaro s.,
Vilnius
2026-05-04
4
Grindų atnaujinimas
Reikia sušveisti (atnaujinti) ir nulakuoti grindis.
Situacija matoma nuotraukose, pateikite prašau kainas grindų šlifavimo+lakavimas, plintusų šlifavimas (jeigu darote)
86m2
Situacija matoma nuotraukose, pateikite prašau kainas grindų šlifavimo+lakavimas, plintusų šlifavimas (jeigu darote)
86m2
Archikaro s.
Vilnius
Karina,
Vilnius
2026-05-04
Plastikiniai langai, gamyba
Laba diena,
Domina lango keitimas Vilniuje. Norėtume pakeisti į PVC langą su durimis.
Matmenys: 2600 (aukštis) × 2100 (plotis) mm.
Spalva: vidus – baltas, išorė – ruda.
(Pridedu esamo lango nuotrauką.)
Būtų aktualu sužinoti:
gaminio kainą,
montavimo kainą,
seno lango demontavimo ir i...
Domina lango keitimas Vilniuje. Norėtume pakeisti į PVC langą su durimis.
Matmenys: 2600 (aukštis) × 2100 (plotis) mm.
Spalva: vidus – baltas, išorė – ruda.
(Pridedu esamo lango nuotrauką.)
Būtų aktualu sužinoti:
gaminio kainą,
montavimo kainą,
seno lango demontavimo ir i...
Žiūrėti daugiau »
Laba diena,
Domina lango keitimas Vilniuje. Norėtume pakeisti į PVC langą su durimis.
Matmenys: 2600 (aukštis) × 2100 (plotis) mm.
Spalva: vidus – baltas, išorė – ruda.
(Pridedu esamo lango nuotrauką.)
Būtų aktualu sužinoti:
gaminio kainą,
montavimo kainą,
seno lango demontavimo ir išvežimo kainą,
preliminarų darbų atlikimo terminą.
Lauksime Jūsų pasiūlymo.
Ačiū
Domina lango keitimas Vilniuje. Norėtume pakeisti į PVC langą su durimis.
Matmenys: 2600 (aukštis) × 2100 (plotis) mm.
Spalva: vidus – baltas, išorė – ruda.
(Pridedu esamo lango nuotrauką.)
Būtų aktualu sužinoti:
gaminio kainą,
montavimo kainą,
seno lango demontavimo ir išvežimo kainą,
preliminarų darbų atlikimo terminą.
Lauksime Jūsų pasiūlymo.
Ačiū
Karina
Vilnius
Siųsk užklausą visiems
Apdorota 562 772 užklausų.
Gauk pasiūlymus, išsirink tinkamiausią.