Uzsakovas,
Klaipėda
prieš 5 val.
Sumontuoti reguluojama stakta duris
Reikia sudėti keleta durų . Durys su reguluojama stakta. Reikės prisipjauti duris
Uzsakovas
Klaipėda
Sildymas, s.,
Vilnius
prieš 5 val.
Sildomos grindys, santechnika
Ieskome kas galetu padaryti grindini sildyma, bei uzbetonuoti. Namas 80 m2, dabar yra betoninis pagrindas. Bei isvedzioti kanalizacija ir vandeni (kanalizacija, bei vanduo yra ivestas i nama).
Uz kiek padarytumete bei kada galetumete pradeti?
Uz kiek padarytumete bei kada galetumete pradeti?
Sildymas, s.
Vilnius
Žydrūnas,
Kėdainių r.
prieš 5 val.
Lubų dažymas
Reikalingas lubų glaistymas ir dažymas. Kiekis 750 m2.
Žydrūnas
Kėdainių r.
Žydrūnas,
Kėdainių r.
prieš 5 val.
Plytelių klijavimas
Reikalinga suklijuoti 350 m2 akmens masės plytelių Kėdainiuose. Plytelės 60x60 ir 30x60.
Žydrūnas
Kėdainių r.
Romas,
Kaunas
prieš 5 val.
ŽEMĖS GRĘŽMAS
REIKIA IŠGREZTI I ŽEMĘ 150mm/15cm/ diametro, apie 1 m.gylio 16skyliu tvorai. Kaunas, Aukštoji Panemunė ,Sodai.- SKUBIAI-
Romas
Kaunas
S., UAB,
Vilnius
prieš 5 val.
5
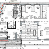
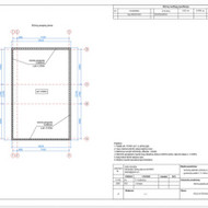
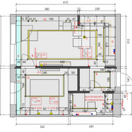
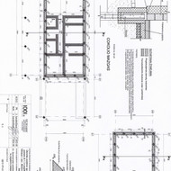
Reikia atlikti 4-ių butų remontą Vilniuje
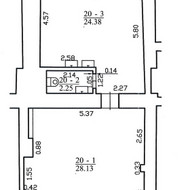
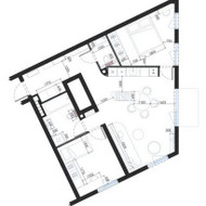
Reikia atlikti 4-ių butų remontą Vilniuje. Samata pridedama - joje atskirai parodytos sumos už medžiagas ir darbus. Pridedame butų planus ir nuotraukas. Visi ardymo darbai jau atlikti. 1 butas 24 kv.m. = 8300 eur, 2 butas 47 kv.m. = 9400 eur, 3 butas 35 kv.m. = 7090 eur, 4 butas 23 kv.m. = 6700 eur....
Žiūrėti daugiau »
Reikia atlikti 4-ių butų remontą Vilniuje. Samata pridedama - joje atskirai parodytos sumos už medžiagas ir darbus. Pridedame butų planus ir nuotraukas. Visi ardymo darbai jau atlikti. 1 butas 24 kv.m. = 8300 eur, 2 butas 47 kv.m. = 9400 eur, 3 butas 35 kv.m. = 7090 eur, 4 butas 23 kv.m. = 6700 eur.
S., UAB
Vilnius
Iskonta,
Klaipėda
prieš 6 val.
Drenazas, lietaus nuotekos
Reikalinga irengti drenaza ir lietaus nuotekas apie nama is d110 vamzdziu uzpilant zvirgzdu ir apsiauciant geotekstile. Viska uzpilti smeliu-60m. Lietaus magistrale is d160.-50m. sulineliai d315-4vnt. Vandentiekio vamzdzio pe32 paklojomas -50m. Valymo irenginio montavimas ir 30m kanalizacijos vamzdz...
Žiūrėti daugiau »
Reikalinga irengti drenaza ir lietaus nuotekas apie nama is d110 vamzdziu uzpilant zvirgzdu ir apsiauciant geotekstile. Viska uzpilti smeliu-60m. Lietaus magistrale is d160.-50m. sulineliai d315-4vnt. Vandentiekio vamzdzio pe32 paklojomas -50m. Valymo irenginio montavimas ir 30m kanalizacijos vamzdzio klojimas. Visos medziagos uzsakovo. Reikalingos preliminarios darbu kainos.
Iskonta
Klaipėda
Namo s.,
Alytus
prieš 6 val.
1
Lanfai , durys, garažo vartai
Reikalingi langai, durys, garažo vartai - su montavimu Alytaus mieste. Prisegu failą. Kokios galimybės ir kainos?
Namo s.
Alytus
Gytis R.,
Panevėžys
prieš 6 val.
Plastikiniai langai, balkono stiklinimas
Plastikinio langas virtuveje ir balkono stiklinimas
Gytis R.
Panevėžys
Milda Z.,
Kaunas
prieš 6 val.
Vidinių durų gamyba
Laba diena,
Domina 3 vnt. Vidinių durų:
Kambario durys, anga: plotis 86cm, aukštis 206 ( domina kad būtų kažkiek Stiklo)
Vonia, anga : plotis 67cm, aukštis 204cm (lygios, be stiklo)
Virtuvė, anga : plotis 84, aukštis 206 (domina kad būtų kažkiek Stiklo)
Domina kaina ir terminas. Aktualu...
Domina 3 vnt. Vidinių durų:
Kambario durys, anga: plotis 86cm, aukštis 206 ( domina kad būtų kažkiek Stiklo)
Vonia, anga : plotis 67cm, aukštis 204cm (lygios, be stiklo)
Virtuvė, anga : plotis 84, aukštis 206 (domina kad būtų kažkiek Stiklo)
Domina kaina ir terminas. Aktualu...
Žiūrėti daugiau »
Laba diena,
Domina 3 vnt. Vidinių durų:
Kambario durys, anga: plotis 86cm, aukštis 206 ( domina kad būtų kažkiek Stiklo)
Vonia, anga : plotis 67cm, aukštis 204cm (lygios, be stiklo)
Virtuvė, anga : plotis 84, aukštis 206 (domina kad būtų kažkiek Stiklo)
Domina kaina ir terminas. Aktualu butu kuo greičiau.
Spalva domina Palermo šviesus ąžuolas D 2609 MX,
Domina 3 vnt. Vidinių durų:
Kambario durys, anga: plotis 86cm, aukštis 206 ( domina kad būtų kažkiek Stiklo)
Vonia, anga : plotis 67cm, aukštis 204cm (lygios, be stiklo)
Virtuvė, anga : plotis 84, aukštis 206 (domina kad būtų kažkiek Stiklo)
Domina kaina ir terminas. Aktualu butu kuo greičiau.
Spalva domina Palermo šviesus ąžuolas D 2609 MX,
Milda Z.
Kaunas
Margarita,
Kaunas
prieš 6 val.
Šiltinimas vata
Reikia apšiltinti parkingą Kaune (darbas su CGL vata)
Margarita
Kaunas
Egidijus M.,
Klaipėda
prieš 6 val.
Lubos GKP renovuoti
Reikia sutvarkyti GKP lubas po ventiliacijos pravedimo. Patalpų plotas apie 50 m2, sutvarkyti , nuglaistyti ir išdažyti baltais dažais.
Egidijus M.
Klaipėda
LTSG,
Palanga
prieš 7 val.
Stogo darbai
Sveiki reikalingi stogininkai Palangoje ir Klaipėdoje.
LTSG
Palanga
Kestas P.,
Vilnius
prieš 7 val.
Reikia pristatyti 8 komplektus vidaus durų Vilniuje
Reikia pristatyti 8 komplektus vidaus durų Vilniuje
Iš Svyronės g. į Panerių g.
Iš Svyronės g. į Panerių g.
Kestas P.
Vilnius
Arturas S.,
Klaipėda
prieš 7 val.

Įtempaimo lubos
Visam butui reikia lubu.
Kokie ikainiai? Perimetru dedasi balta juostele, lubos baltos-matinęs. Pigiausias variantas.
Kokie ikainiai? Perimetru dedasi balta juostele, lubos baltos-matinęs. Pigiausias variantas.
Arturas S.
Klaipėda
Siųsk užklausą visiems
Apdorota 486 849 užklausų.
Gauk pasiūlymus, išsirink tinkamiausią.