Dovilė V.,
Vilnius
2025-10-20
1
Sumontuoti 3 vnt. durų į staktas
Reikia sumontuoti duris į staktas ( jos jau sumontuotos, priglaistytos g/k) ir rankenas.
Dovilė V.
Vilnius
Moduliniai p.,
Vilnius
2025-10-20
3
54m2 garažo -plovyklos apsiuvimas sandwitch plokšte
Laba diena, norėtume Vilniaus r, apsiūti konstrukcijas sandwitch plokšte.
patalpa, garažas - plovykla.
170m2 plokštės pagal matmenis bus jau supjautos.
sumontuoti 3 langus bei atlikti apskardinimo darbus.
Terminas iki Lapkričio 1 dienos.
patalpa, garažas - plovykla.
170m2 plokštės pagal matmenis bus jau supjautos.
sumontuoti 3 langus bei atlikti apskardinimo darbus.
Terminas iki Lapkričio 1 dienos.
Moduliniai p.
Vilnius
Zivile,
Vilnius
2025-10-20
Teptinė Hidroizolaicija, Vilnius, Mozūriškių g.
Ieškomi teptinės Hidroizoliacijos rangovai. .5300 m2, du sluoksniai teptinė hidroizoliacija. Nuo lapkričio vidurio startuojam ir po biški tepama iki Kovo mėn.
Zivile
Vilnius
Kentucio,
Vilnius
2025-10-20
1
Griovimo darbai
Sveiki nugriaut isvest su pamatais Vilnius 180-200kv
Kentucio
Vilnius
Stogai,
Vilnius
2025-10-20
Stogas
Reikalingi stogdengiai Vilniuje 140m2 , vienšlaitis .
Pradėt galima nuo penktadienio .
Kas laisvi? Lauksiu kainos
Pradėt galima nuo penktadienio .
Kas laisvi? Lauksiu kainos
Stogai
Vilnius
Saulius,
Vilnius
2025-10-20
1
Apdailos darbai
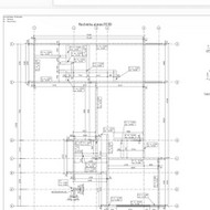
Sveiki.
Planuojama atlikti daugiabučio namo laiptinės rūsio bendrų patalpų remontą, t.y. nudažyti sienas ir išbetonuoti sutrukusią grindų dangą, žr. planą.
Ar jus galėtumėte atlikti darbus? Kokia būtų medžiagų ir darbų sąmata? Koks darbų atlikimo terminas? Ar galėtumėte atvykti apžiūrėti ir įsive...
Planuojama atlikti daugiabučio namo laiptinės rūsio bendrų patalpų remontą, t.y. nudažyti sienas ir išbetonuoti sutrukusią grindų dangą, žr. planą.
Ar jus galėtumėte atlikti darbus? Kokia būtų medžiagų ir darbų sąmata? Koks darbų atlikimo terminas? Ar galėtumėte atvykti apžiūrėti ir įsive...
Žiūrėti daugiau »
Sveiki.
Planuojama atlikti daugiabučio namo laiptinės rūsio bendrų patalpų remontą, t.y. nudažyti sienas ir išbetonuoti sutrukusią grindų dangą, žr. planą.
Ar jus galėtumėte atlikti darbus? Kokia būtų medžiagų ir darbų sąmata? Koks darbų atlikimo terminas? Ar galėtumėte atvykti apžiūrėti ir įsivertinti patalpas?
Planuojama atlikti daugiabučio namo laiptinės rūsio bendrų patalpų remontą, t.y. nudažyti sienas ir išbetonuoti sutrukusią grindų dangą, žr. planą.
Ar jus galėtumėte atlikti darbus? Kokia būtų medžiagų ir darbų sąmata? Koks darbų atlikimo terminas? Ar galėtumėte atvykti apžiūrėti ir įsivertinti patalpas?
Saulius
Vilnius
Garažo v.,
Vilnius
2025-10-20
Garažo vartai
Sveiki, domina pakeliami automatiniai garažo vartai ( plotis 320cm aukštis 250cm ) antracito spalvos . Kokią kainą galėtumėt pasiūlyti su montavimų? Vilnius
Garažo v.
Vilnius
Tomas,
Vilnius
2025-10-20
Vidaus apdaila
Reikalingas meistras ivairiems apdailos darbams sporto klube. gipso remontas. kriaukles sumontavimas ir pns.
placiau pokalbio metu.
placiau pokalbio metu.
Tomas
Vilnius
Marius V.,
Vilnius
2025-10-20
Reikalingi 2 vnt valymo irenginiai
Reikalingi du valymo įrenginiai Pikutiškėse.
Marius V.
Vilnius
Del g. b.,
Vilnius
2025-10-20
Grindu betonavimas
Dvibucio viena dalis, apie 120 kvm per 2 aukstus, Vilnius, Lazdyneliai. Reikalingas grindu betonavimas.
galima pradeti sios savaites pabaiga, sekancios pradzia.
po gero men reikes ir kita dvibucio dali.
Reikalinga sf.
galima pradeti sios savaites pabaiga, sekancios pradzia.
po gero men reikes ir kita dvibucio dali.
Reikalinga sf.
Del g. b.
Vilnius
Pajurio A. D.,
Vilnius
2025-10-20
Gipso montavimas
Sveiki,
Reikalingi gipso montuotojai Vilniuje. Šiuo metu yra 3 butai, kuriuose reikia sumontuoti gipsą. Visi butai yra viename pastate, Daugeliskio gatvėje, kiekvieno buto plotas apie 50 kv. m
Domina gipso montavimo kaina
Darbo specifika:
Aplink perimetrą bus šešėlinės siūlės, todėl reikia p...
Reikalingi gipso montuotojai Vilniuje. Šiuo metu yra 3 butai, kuriuose reikia sumontuoti gipsą. Visi butai yra viename pastate, Daugeliskio gatvėje, kiekvieno buto plotas apie 50 kv. m
Domina gipso montavimo kaina
Darbo specifika:
Aplink perimetrą bus šešėlinės siūlės, todėl reikia p...
Žiūrėti daugiau »
Sveiki,
Reikalingi gipso montuotojai Vilniuje. Šiuo metu yra 3 butai, kuriuose reikia sumontuoti gipsą. Visi butai yra viename pastate, Daugeliskio gatvėje, kiekvieno buto plotas apie 50 kv. m
Domina gipso montavimo kaina
Darbo specifika:
Aplink perimetrą bus šešėlinės siūlės, todėl reikia palikti apie 6–7 mm tarpą
Bus įrengiamos paslėptos nišos karnizams
Apibendrinant, domina:
Gipso montavimo kaina
Paslėpto karnyzo įrengimo kaina už bėginį metrą
Difuzoriaus montavimo kaina
Reikalingi gipso montuotojai Vilniuje. Šiuo metu yra 3 butai, kuriuose reikia sumontuoti gipsą. Visi butai yra viename pastate, Daugeliskio gatvėje, kiekvieno buto plotas apie 50 kv. m
Domina gipso montavimo kaina
Darbo specifika:
Aplink perimetrą bus šešėlinės siūlės, todėl reikia palikti apie 6–7 mm tarpą
Bus įrengiamos paslėptos nišos karnizams
Apibendrinant, domina:
Gipso montavimo kaina
Paslėpto karnyzo įrengimo kaina už bėginį metrą
Difuzoriaus montavimo kaina
Pajurio A. D.
Vilnius
Aleksandras,
Vilnius
2025-10-20
1
Sumotuoti tvoros vartelius
Sveiki, ieškau kas galėtu pagamini pagal užsakyma tvoros vartelius su spyna ir rakteliais, spalva antracitas, 164cm aukštis, plotis 90cm
Domina taip pat benotavimas ir montavimas
Vilnius, Grigiškės
Domina taip pat benotavimas ir montavimas
Vilnius, Grigiškės
Aleksandras
Vilnius
Jura D.,
Vilnius
2025-10-20
Pagaminti ir sumontuoti automatinius vartus į teritorija
Pagaminti ir sumontuoti stumdomus vartus į teritorija. Pravažiavimo anga 3.55m, pagrindas vartams, kabeliai, bus sumontuotos.
Objektas Pabradeje.
Objektas Pabradeje.
Jura D.
Vilnius
Stasys,
Vilnius
2025-10-20
Reikalingas raciokas ar bobcat nustumti nuo pamatu smelį
Nustumti nuo pamatu isores smel,į objektas Valakampiuose.
Stasys
Vilnius
Jaroslav,
Vilnius
2025-10-20
Betono/plytų skalda keliui
Reikalinga viena mašina (10-14kub) betono/plytų skaldos kelio taisymui. Atvežimas į Sudervė. Kokia butu kaina ir terminas?
Jaroslav
Vilnius
Siųsk užklausą visiems
Apdorota 496 367 užklausų.
Gauk pasiūlymus, išsirink tinkamiausią.