1. Paslaugos.lt
  2. Statybos, apdaila
  3. Užklausos
  4. Vilniuje

Klientų užklausos

Statybos, apdaila Vilniuje

« atgal į kategoriją
Dovydas,
Vilnius
2024-01-25
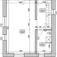
Stogo ir perdangos keitimas 1
Stogo ir perdangos keitimas
Konkursuojame kas padartų šiuos darbus:
Namo stogo keitimas (seno nugriovimas, gegnių pakeitimas, stogo danga ir apšiltinimas);
Perdangos iš antro aukšto į palėpę padarymas (medinė turėtų būti);
Laiptinės iš rūsio iki antrojo aukšo išgriovimas ir pakeitimas į kitą pusę (betonas);

Kiti darbai:...

Žiūrėti daugiau »

Konkursuojame kas padartų šiuos darbus:
Namo stogo keitimas (seno nugriovimas, gegnių pakeitimas, stogo danga ir apšiltinimas);
Perdangos iš antro aukšto į palėpę padarymas (medinė turėtų būti);
Laiptinės iš rūsio iki antrojo aukšo išgriovimas ir pakeitimas į kitą pusę (betonas);

Kiti darbai:
Namo pamatų sutvirtinimas ar apšiltinimas
Prisegti failai: 1 Biudžetas: 111 Terminas: Balandis
Dovydas
Vilnius
Užklausa sustabdyta. Gauta daugiau nei prieš 30 dienų.
Valdas,
Vilnius
2024-01-25
Viesman dujinio katilo remontas
Vilnius Juodasis Kelias dujinio pakabinamo katilo Viessman Vitodens 100 skubus remontas. Gęsta kas 30 min.
Biudžetas: Atvykimas ir tik atvykimas-100 , remontas-detales iki 600 Terminas: Šiandien
Valdas
Vilnius
Užklausa sustabdyta. Klientas rado paslaugų teikėją.
Dovydas,
Vilnius
2024-01-25
Pamatų tvirtinimas ir apšiltinimas 1
Pamatų tvirtinimas ir apšiltinimas
Konkursuojame kas padartų pamatų sutvirtinimą ir apšiltinimą.
Alkūnės g. , Vilnius, yra skilusių keletą sienų.
Darbų pradžia galėtų būti balandį.

Reikalingi ir kiti darbai:
Namo stogo keitimas (seno nugriovimas, gegnių pakeitimas, stogo danga ir apšiltinimas);
Perdangos iš antro aukšto į pa...

Žiūrėti daugiau »

Konkursuojame kas padartų pamatų sutvirtinimą ir apšiltinimą.
Alkūnės g. , Vilnius, yra skilusių keletą sienų.
Darbų pradžia galėtų būti balandį.

Reikalingi ir kiti darbai:
Namo stogo keitimas (seno nugriovimas, gegnių pakeitimas, stogo danga ir apšiltinimas);
Perdangos iš antro aukšto į palėpę padarymas (medinė turėtų būti);
Laiptinės iš rūsio iki antrojo aukšo išgriovimas ir pakeitimas į kitą pusę (betonas);
Prisegti failai: 1 Biudžetas: 111 Terminas: Balandis
Dovydas
Vilnius
Užklausa sustabdyta. Gauta daugiau nei prieš 30 dienų.
Dovydas,
Vilnius
2024-01-25
Pastatų sertifikavimas
Reikalinga padaryti apva skaičiavimus dėl namo apšiltinimo. Norime gauti paramą. Iš klasės G iki klasės B.
Biudžetas: 111 Terminas: Vasario 25
Dovydas
Vilnius
Užklausa sustabdyta. Gauta daugiau nei prieš 30 dienų.
Regina S.,
Vilnius
2024-01-25
Architektai, projektavimas
Sveiki, as su sese nupirkom nama ir norim padalinti i du butus. Kaip tai galima padaryti. Aciu
Sklypo adresas: V. Sirokomles 47-1,Nemezio km. Vilniaus raj.
Regina S.
Vilnius
Užklausa sustabdyta. Gauta daugiau nei prieš 30 dienų.
Eugenijus,
Vilnius
2024-01-25
Kieto kuro katilų valymas ir priežiūra
Katilo Viadrus sureguliavimas ir profilaktika. Vilnius, Trakų Vokė
Terminas: 2024 01 25-26 d.
Eugenijus
Vilnius
Užklausa sustabdyta. Gauta daugiau nei prieš 30 dienų.
Paulius,
Vilnius
2024-01-25
Perdangos apšiltinimas, šiltinimas 1
Perdangos apšiltinimas, šiltinimas
Domina perdangos šiltinimo kainos biria vata, taip pat garo plėvelės montavimas
150kv.
Prisegti failai: 1 Šiltinamas: Perdangą Energetinė klasė: A++ Šiltinamas plotas: 150+- Medžiagos: Biri vata Papildomi darbai: Garo plėvelės montavimas Adresas: Vilnius, Didžioji Riešė
Paulius
Vilnius
Užklausa sustabdyta. Gauta daugiau nei prieš 30 dienų.
Valerijus Š.,
Vilnius
2024-01-25
Reikalingas nuotekų valymo įrenginys (6 asm.š.) su montavimo darbais ir įvadu į pastatą 1
Reikalingas nuotekų valymo įrenginys (6 asm.š.) su montavimo darbais ir įvadu į pastatą
Sveiki.
Reikalingas nuotieku valymo įrenginys (6 asm.š.) su montavimo darbais ir įvadų i pastata.
Pstb.( ~2m gylyje gruntinis vanduo)
Ir Šalto vandens pajungimas su įvadų .
Vieta- Vaidotu km. Vilniaus r.
Kontaktas - 8-676 34801 Valerijus
Prisegti failai: 1 Biudžetas: Laukiu pasiulimu Terminas: 1 mėnuo
Valerijus Š.
Vilnius
Užklausa sustabdyta. Gauta daugiau nei prieš 30 dienų.
Saimonas K.,
Vilnius
2024-01-25
Gipso lubų montavimas 2
Gipso lubų montavimas
Dvieju aukštų name reikia sumontuoti gipsines lubas apie 80m2. Pirmame aukšte svetainėje bus apie 12m nišu užuolaidoms ir led apšvietimui. Ir dar 10 priglaistomų difuzoriu. Domina kvadrato kaina, nišų ir difuzoriu kaina be medžiagų.
Prisegti failai: 2 Terminas: Per vasario mėn
Saimonas K.
Vilnius
Užklausa sustabdyta. Klientas rado paslaugų teikėją.
Giedre,
Vilnius
2024-01-25
Reikalingas projektas apie 3,5 a sklypo apželdinimui
Rreikalingas projektas apie 3,5a sklypo apželdinimui. Veja, tersasa, žaidimų aikštelė jau yra, reikia padėti įkomponuoti tinkamoje vietoje, kelis dekoratyvinius medelius, kelias pakeliamas lysves, gėlynukus, ką galime padaryti gražiai "įrėminant" sandėliuką ir tvorą, kad robotas gražiai apipjautų.
Terminas: Iki gegužės mėn
Giedre
Vilnius
Užklausa sustabdyta. Gauta daugiau nei prieš 30 dienų.
Arūnas,
Vilnius
2024-01-25
Įrengti 60kv butą Linkmenų g
Sveiki,
Ieškome komandos, kuri nuo vasario vidurio arba pabaigos galėtų pradėti įrengimo darbus 60kv bute. Butas randasi Linkmenų g. Bute neįrengtos pertvaros, santechnikos ir elektros darbai (reikės korekcijų). Reikalingas įrengimas iki baldų. Domina darbų kaina.
Arūnas
Vilnius
Užklausa sustabdyta. Klientas rado paslaugų teikėją.
Donatas,
Plungės r., visa Lietuva
2024-01-24
Verslo planų rengimas
Labas, turiu uab dirbu 2,9 metų. Ieškau kas padėtu su ES parama, finansavimu, parašyti plana paskolai gauti startuojant rimčiau. 862785627
Biudžetas: 1000 Terminas: Nėra
Donatas
Plungės r., visa Lietuva
Užklausa sustabdyta. Gauta daugiau nei prieš 30 dienų.
Judita,
Vilnius
2024-01-24
Reikalingas plytelių klojėjas
Reikalingas plytelių klojėjas, Vilniuje, apie 24 m2 sienų plytelių , apie 10 m2 grindų plytelių.
Reikiamos medžiagos: Turėsiu Terminas: Vasario mėn.
Judita
Vilnius
Užklausa sustabdyta. Gauta daugiau nei prieš 30 dienų.
Linas,
Vilnius
2024-01-24
Reiktų paruošti ir nudažyti gipskartonio sieną 1
Reiktų paruošti ir nudažyti gipskartonio sieną
Reiktų paruošti ir nudažyti gipskartonio sieną. 10mx3m.
Prisegti failai: 1 Remontuojamas plotas: 10mx3m
Linas
Vilnius
Užklausa sustabdyta. Klientas rado paslaugų teikėją.
Reda V.,
Vilnius
2024-01-24
1
Elektrikai, elektros darbai, rangovo aktas
Esu išsiėmusi Prisijungimo salygas prie ESO. dabar beliko atlikti vidaus tinklų darbus ir pateikti aktą. Bet man vienas elektrikasnurodė, kad nuo ESO dėžės iki mano patalpos yra apie 100 m ir darbai bei kabelis kainuos 3000-4000 eurų. Aš su tokia kaina nesutikau, nes negaliu sau leisti. Skambinau į ...

Žiūrėti daugiau »

Esu išsiėmusi Prisijungimo salygas prie ESO. dabar beliko atlikti vidaus tinklų darbus ir pateikti aktą. Bet man vienas elektrikasnurodė, kad nuo ESO dėžės iki mano patalpos yra apie 100 m ir darbai bei kabelis kainuos 3000-4000 eurų. Aš su tokia kaina nesutikau, nes negaliu sau leisti. Skambinau į ESO, kad nutrauktų sutartį, bet jie iki šiol sutarties nenutraukė, todėl nutariau išsikviesti dar vieną elektriką, kuris dar kartą įvertintų situacijąir tada aš galutinai galėčiau apsispręsti.
Prisegti failai: 1 Adresas: Dariaus ir Girėno g. 42B-506 Vilnius Biudžetas: Iki 1000 eurų Terminas: Iki 2024-03
Reda V.
Vilnius
Užklausa sustabdyta. Gauta daugiau nei prieš 30 dienų.
Gauk meistrų pasiūlymus
Apdorota 499 018 užklausų.
Paslaugos.lt Užklausa
Išbandyk !
Išsirink tinkamiausią. ⏱️Sutaupyk laiko.