1. Paslaugos.lt
  2. Statybos, apdaila
  3. Užklausos
  4. Vilniuje

Klientų užklausos

Statybos, apdaila Vilniuje

« atgal į kategoriją
Konstantinas,
Vilnius
2024-01-26
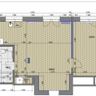
Plytelių klijavimas 1
Plytelių klijavimas
Reikalingas plyteliu meistras už gerą kainą. Įrengiama viena kotedžo dalis pardavimui. Reikia pilnai paklijuoti du san.mazgus. Plytele manau 30x60. Vasario mėn. Grigaičiai. Mokejimas pavedimu. Pridedu brėžinį.
Prisegti failai: 1
Konstantinas
Vilnius
Užklausa sustabdyta. Gauta daugiau nei prieš 30 dienų.
Grazina V.,
Vilnius
2024-01-26
Aplinkos tvarkymas, apželdinimas
Sveiki,
Po statybų, yra takai iš trinkelių, reikia suformoti, apželdinti veja ,galimai medeliais ir gėlėmis apie 10 arų. Vilniaus rajonas 12 km. nuo Vilniaus
Terminas: Balandžio mėn.
Grazina V.
Vilnius
Užklausa sustabdyta. Gauta daugiau nei prieš 30 dienų.
Andrius,
Vilnius
2024-01-26
Grindų betonavimas 1
Grindų betonavimas
Reikia skubiai išbetonuoti 7 kv.m. vonios patalpą (naujai įrengiamame bute Vilniuje). 1 nuolydis dušui. Galima derintis bet kuriuo metu. Medžiagas galime nupirkti.
Prisegti failai: 1 Grindų plotas: 7 Terminas: Kuo greičiau
Andrius
Vilnius
Užklausa sustabdyta. Gauta daugiau nei prieš 30 dienų.
Remidas,
Vilnius
2024-01-26
Buto remontas 1
Buto remontas
Reikalingas rangovas buto remontui, butas senos statybos name, 55 m2, turime projektą ir leidimą remontui. Pirmas etapas - apžiūra, projekto įgyvendinimo sprendimų derinimai ir sąmatos parengimas.
Prisegti failai: 1 Terminas: Kuo greičiau
Remidas
Vilnius
Užklausa sustabdyta. Gauta daugiau nei prieš 30 dienų.
Violeta,
Vilnius
2024-01-26
1
Stogdengiai, stogo darbai
Individualiam namui (A++) Vilniuje pavasariui ieškome stogdengių (medinės stogo konstrukcijos, šiltinimas, danga). Stogo plotas 360 kv.m, plokščias, steico sijų. Šiltinamas tarp steico sijų 90x39x400mm, danga 2sl. bituminė. Domina kaina be medžiagų, o jei yra galimybė – preliminariai su medžiagomis....

Žiūrėti daugiau »

Individualiam namui (A++) Vilniuje pavasariui ieškome stogdengių (medinės stogo konstrukcijos, šiltinimas, danga). Stogo plotas 360 kv.m, plokščias, steico sijų. Šiltinamas tarp steico sijų 90x39x400mm, danga 2sl. bituminė. Domina kaina be medžiagų, o jei yra galimybė – preliminariai su medžiagomis.
Prisegti failai: 1 Stogo tipas: Plokščias Plotas: 360 Medžiagos: Galimi abu variantai Stogas: Naujai statomas Terminas: Pavasaris
Violeta
Vilnius
Užklausa sustabdyta. Gauta daugiau nei prieš 30 dienų.
Ricardas P.,
Vilnius
2024-01-26
Reikalingas tinkuotojas, dažytojas
Du objektai, Zemaites gatve apie 90 kv,m bendro koridoriaus.
Naugarduko gatve kambarys 16 kv,m. Nuimtas senas tinkas iki plytu.
Nemokantiems tinkuoti gipsiniu tinku prasome netrugdyti. ACIU
Biudžetas: Kaina derinama Terminas: 5 SAVAITES
Ricardas P.
Vilnius
Užklausa sustabdyta. Gauta daugiau nei prieš 30 dienų.
Aleksandr,
Vilnius
2024-01-26
Rekuperatorios montavimas 1
Rekuperatorios montavimas
Reikia sumontuoti ir pajungti rekupa. Plana prisegiu
Prisegti failai: 1 Biudžetas: Sutartinis
Aleksandr
Vilnius
Užklausa sustabdyta. Klientas rado paslaugų teikėją.
Ignas M.,
Vilnius
2024-01-26
Elektros darbai 2
Elektros darbai
Ieškomi elektros įrengimo meistrai su sąskaita. Reikia atlikti lofto instaliacijos darbus. Sienos ir pertvaros: dvigubas gipsas. Reikalingi įkainiai be medžiagų: akustinės dėžutės įrengimas gipse, laido vedimas štrobuojant ir užtepant mišiniu gipso kartone, laido vedimas atviru paviršiumi, automatin...

Žiūrėti daugiau »

Ieškomi elektros įrengimo meistrai su sąskaita. Reikia atlikti lofto instaliacijos darbus. Sienos ir pertvaros: dvigubas gipsas. Reikalingi įkainiai be medžiagų: akustinės dėžutės įrengimas gipse, laido vedimas štrobuojant ir užtepant mišiniu gipso kartone, laido vedimas atviru paviršiumi, automatinio jungiklio skydelyje montavimas (skydas yra). Terminas iki vasario vidurio. Jei reikia papildomos informacijos rašykite ir būtinai susisieksiu. Ačiū.
Prisegti failai: 2 Terminas: Iki vasario vidurio
Ignas M.
Vilnius
Užklausa sustabdyta. Klientas rado paslaugų teikėją.
Indrė,
Vilnius
2024-01-25
Suklijuoti plyteles
Suklijuoti balkono grindis, vonios sienas ir grindis iki 25kv. Senos statybos name.
Biudžetas: 550 Terminas: Kovo 18d.
Indrė
Vilnius
Užklausa sustabdyta. Gauta daugiau nei prieš 30 dienų.
Павел Матушов,
Vilnius
2024-01-25
Buto remontas
Buto arba naujo buto -namo euroremontas ir apdailos darbai
Biudžetas: Nuo 1000
Павел Матушов
Vilnius
Užklausa sustabdyta. Gauta daugiau nei prieš 30 dienų.
Jonas,
Vilnius
2024-01-25
Ieškome, kas įrengtų terasą (šalia Vilniaus) 2
Ieškome, kas įrengtų terasą (šalia Vilniaus)
Ieškome, kas galėtų pilnai įrengti terasą aplink namą.
Terasos preliminarus planas ir vietos nuotrauka pridedama. Bendras terasos plotas ~48 m2, iš jų 13,2 m2 turėtų būti ant senos terasos (seną terasą reikėtų išmontuoti, arba galima naują įrengti ant jos, nes senoji dar pakankamai tvirta).
Domi...

Žiūrėti daugiau »

Ieškome, kas galėtų pilnai įrengti terasą aplink namą.
Terasos preliminarus planas ir vietos nuotrauka pridedama. Bendras terasos plotas ~48 m2, iš jų 13,2 m2 turėtų būti ant senos terasos (seną terasą reikėtų išmontuoti, arba galima naują įrengti ant jos, nes senoji dar pakankamai tvirta).
Domina pilna kaina su darbu ir medžiagomis, polių įrengimu ir pan. Dėl medienos kol kas nesame apsisprendę, todėl domintų kaina su paprasta pušimi, ir su termomediena (domintų Jūsų rekomendacijos, kurią medieną geriau rinktis).
Darbus būtų galima pradėti iš karto nutirpus sniegui.
Namas yra šalia Vilniaus, 3 km nuo Grigiškių (Valų k.).
Esant reikalui, vietą galima apžiūrėti.
Prisegti failai: 2 Terminas: Iš karto nutirpus sniegui
Jonas
Vilnius
Užklausa sustabdyta. Gauta daugiau nei prieš 30 dienų.
791-oji D.,
Vilnius
2024-01-25
Skardinimo darbai, skardininkai
5 aukštų namui reikia pakeisti surūdijusius vandens latakus. Adresas Vilniaus g- , Grigiškės, Vilnius. Namą administruoja 791-oji DNSB.
Biudžetas: 2000 EUR Terminas: Kaip galima greičiau
791-oji D.
Vilnius
Užklausa sustabdyta. Gauta daugiau nei prieš 30 dienų.
Justas,
Vilnius
2024-01-25
Fasado siltinimas
Sveiki, reikia apsiltini namo pamata is isores ir fasada. Pageidautina siltinti polisteroliu, bet galimi ir kiti variantai. Namas senos statybos, murinis. Bendras sienu plotas apie 250m2.
Lauiame pasiulymu su darbu ir medziagu kainomis.
Biudžetas: Sutartinis Terminas: Orams atšilus per 1-2 mėn.
Justas
Vilnius
Užklausa sustabdyta. Gauta daugiau nei prieš 30 dienų.
Laura,
Vilnius
2024-01-25
Statybos darbai
Sveiki, domina darbu kaina (be medziagu) medines perdangos irengimo su apsiltinimu tarp pirmo ir antro auksto. Plotas 66kvm.
Stogas yra, padarytos angos naujiems balkiams ant kuriu reiketu montuoti perdanga
Laura
Vilnius
Užklausa sustabdyta. Gauta daugiau nei prieš 30 dienų.
Sigitas,
Vilnius
2024-01-25
1
Rikalingas zmogus vandens ir nuoteku pozeminiai inzineriniai tinklai a laidai
Rikalingas zmogus a laidai nuoteku ir vandens inźinerinius tinklus parenkti
Prisegti failai: 1
Sigitas
Vilnius
Užklausa sustabdyta. Gauta daugiau nei prieš 30 dienų.
Gauk meistrų pasiūlymus
Apdorota 499 018 užklausų.
Paslaugos.lt Užklausa
Išbandyk !
Išsirink tinkamiausią. ⏱️Sutaupyk laiko.