K.K.,
Kaunas
2025-10-24
Mūrininkai trims-keturioms dienoms
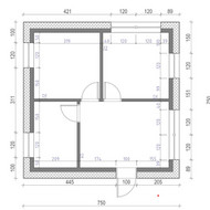
Sveiki, reikalingi trims-keturioms dienoms mūrininkai pabaigti mūrinti 1 aukštą pradėta ir monolitinį žiedą išpilti apie 100 M žiedo. Mūras 25 cm keramikiniai blokeliai ir silikatiniai blokeliai.
Pasitikslintume kieki, apmokėjimas su sąskaita galima tartis iškarto su rimtais pasiūlymais.
Pasitikslintume kieki, apmokėjimas su sąskaita galima tartis iškarto su rimtais pasiūlymais.
K.K.
Kaunas
Egidijus,
Kaunas
2025-10-23
Mūrinimas kaunas
ūkinis pastatas išorės sienų plotas 70 vidus 40 m2 sienos , stogas vienšlaitis. Keraminiai blokeliai.
Galima nuo pirmadienio pradėti.
Galima nuo pirmadienio pradėti.
Egidijus
Kaunas
Raimond V.,
Kaunas
2025-10-23
Mūras, betonavimas
Turime objektą Kaune. Reikia išbetonuoti lifto šachtai pamatą ir išmūryti iš plytų lifto šachtą.
Raimond V.
Kaunas
Egidijus,
Kaunas
2025-10-23
Mūro darbai, mūrijimas
Mūras apie 1500 m3 per žiemą po stogu Kaune, blokeliai 180mm Arko,
kaina sutartinė.
kaina sutartinė.
Egidijus
Kaunas
Andrius,
Kaunas
2025-10-20
2
Mūro darbai, mūrijimas / Palemono g. , Kaunas
Sveiki,
nuo 2025-11-25 d. ieškome mūrininku 4 dvibučių namų mūrui.
Šiais metais 1 dvibuti darysime, kitus kitais jau metais.
Objekto adresas: Palemono g. (nuasmeninta), Kaunas
Blokai - blokeliai 17,5mm
Kiekis 1 a. 26m3 ir 2a. 31m3 viso 57m3
Andrius
Projektų vadovas
nuo 2025-11-25 d. ieškome mūrininku 4 dvibučių namų mūrui.
Šiais metais 1 dvibuti darysime, kitus kitais jau metais.
Objekto adresas: Palemono g. (nuasmeninta), Kaunas
Blokai - blokeliai 17,5mm
Kiekis 1 a. 26m3 ir 2a. 31m3 viso 57m3
Andrius
Projektų vadovas
Andrius
Kaunas
Edgaras B.,
Kaunas
2025-10-15
Mūrininkai, pakelti parapetą
Reikalingi mūrininkai pakelti parapetą, preliminarus kiekis 40m3 blokeliais. Detalesnė informacija telefonu -
Edgaras B.
Kaunas
Martynas J.,
Kaunas
2025-10-10
4
Rangovo paieška – gyvenamojo namo statybai Kaune
Ieškome rangovo, galinčio atlikti vienbučio gyvenamojo namo statybos darbus Kaune (Vyturių g. 10, Mitkūnai, Kauno r.).
Projektas parengtas, statybos leidimas gautas, pamatai jau įrengti.
Darbų apimtis (I etapas):
-Mūro darbai (išorinės ir vidinės sienos);
-Fasadų šiltinimas, apdaila pagal pr...
Projektas parengtas, statybos leidimas gautas, pamatai jau įrengti.
Darbų apimtis (I etapas):
-Mūro darbai (išorinės ir vidinės sienos);
-Fasadų šiltinimas, apdaila pagal pr...
Žiūrėti daugiau »
Ieškome rangovo, galinčio atlikti vienbučio gyvenamojo namo statybos darbus Kaune (Vyturių g. 10, Mitkūnai, Kauno r.).
Projektas parengtas, statybos leidimas gautas, pamatai jau įrengti.
Darbų apimtis (I etapas):
-Mūro darbai (išorinės ir vidinės sienos);
-Fasadų šiltinimas, apdaila pagal projektą;
-Stogo konstrukcijų montavimas;
-Skardinimo ir stogo dangos darbai.
Turime:
- Parengtą SA ir SK projekto dalį;
- Parengtą samatą su kiekiais, įkainių pateikimui;
- Aiškų techninį užduotį ir terminus.
Objekto informacija:
Vieno aukšto gyvenamasis namas su garažu;
Pamatų tipas – gręžtiniai poliai su rostverku (jau atlikta);
Bendras pastato plotas – ~156 m² + garažas 33 m².
Reikalavimai rangovui:
Patirtis individualių namų statyboje;
Savo darbo įrankiai ir komanda;
Galimybė pradėti darbus artimiausiu metu;
Galimybė pateikti atliktų darbų pavyzdžius ar objektus.
Siūlome:
Darbų atlikimą pagal aiškią ir suderintą samatą;
Tiesioginį bendradarbiavimą su užsakovu (be tarpininkų);
Savalaikį atsiskaitymą už faktiškai atliktus darbus.
Objektas: Kauno raj., Mitkūnai (Vyturių g. (nuasmeninta))
Pradžia: pagal susitarimą (pirmas etapas – mūras)
Foto, situacija siandien (2025-10-10 nuimti pamatų klojiniai)
Patys ikid darbų pradzios pasišiltinsime pamatus, užsivešime smėlį į pamatą.
Projektas parengtas, statybos leidimas gautas, pamatai jau įrengti.
Darbų apimtis (I etapas):
-Mūro darbai (išorinės ir vidinės sienos);
-Fasadų šiltinimas, apdaila pagal projektą;
-Stogo konstrukcijų montavimas;
-Skardinimo ir stogo dangos darbai.
Turime:
- Parengtą SA ir SK projekto dalį;
- Parengtą samatą su kiekiais, įkainių pateikimui;
- Aiškų techninį užduotį ir terminus.
Objekto informacija:
Vieno aukšto gyvenamasis namas su garažu;
Pamatų tipas – gręžtiniai poliai su rostverku (jau atlikta);
Bendras pastato plotas – ~156 m² + garažas 33 m².
Reikalavimai rangovui:
Patirtis individualių namų statyboje;
Savo darbo įrankiai ir komanda;
Galimybė pradėti darbus artimiausiu metu;
Galimybė pateikti atliktų darbų pavyzdžius ar objektus.
Siūlome:
Darbų atlikimą pagal aiškią ir suderintą samatą;
Tiesioginį bendradarbiavimą su užsakovu (be tarpininkų);
Savalaikį atsiskaitymą už faktiškai atliktus darbus.
Objektas: Kauno raj., Mitkūnai (Vyturių g. (nuasmeninta))
Pradžia: pagal susitarimą (pirmas etapas – mūras)
Foto, situacija siandien (2025-10-10 nuimti pamatų klojiniai)
Patys ikid darbų pradzios pasišiltinsime pamatus, užsivešime smėlį į pamatą.
Martynas J.
Kaunas
Sergejus,
Kaunas
2025-10-09
Reikalingas murininkas ismuryt Uzliedziuose 50-60 m2 sandeliukus blokeliais
Privaciam name ismuryt sandeliukus. Blokelis keramzit-betonas. 6 sandeliukai,bendras plotas apie 60 m2. Objektas Uzliedziuose
Sergejus
Kaunas
Airidas,
Kaunas
2025-10-08
Mūro darbai, mūrijimas
Sveiki reikia mūrininkų brigados pakelti pastato sienas išlieti žiedus betonuoti kolonas pastatas 700kv m
Airidas
Kaunas
Ligita,
Kaunas
2025-10-08
1
Užmūrinti durų angą
Kas, kad ir kokia kaina galėtų užmūrinti durų angą?
Ligita
Kaunas
Stasys,
Kaunas
2025-10-06
12
Ieškau kas galėtų pradėti namo rekonstrukcijos darbus
Ieškau kas galėtų pradėti namo rekonstrukcijos darbus. Dabar reikalingi tik griovimo ir mūrinimo darbai. Darbų apimtis:
1. Sienų griovimas
2. Betoninių laiptų įrengimas
3. Plokščio betoninio stogo įrengimas
Pridedu esamo namo dokumentus, nuotraukas ir norimo rekonstrukcijos projekto brežinius....
1. Sienų griovimas
2. Betoninių laiptų įrengimas
3. Plokščio betoninio stogo įrengimas
Pridedu esamo namo dokumentus, nuotraukas ir norimo rekonstrukcijos projekto brežinius....
Žiūrėti daugiau »
Ieškau kas galėtų pradėti namo rekonstrukcijos darbus. Dabar reikalingi tik griovimo ir mūrinimo darbai. Darbų apimtis:
1. Sienų griovimas
2. Betoninių laiptų įrengimas
3. Plokščio betoninio stogo įrengimas
Pridedu esamo namo dokumentus, nuotraukas ir norimo rekonstrukcijos projekto brežinius. Domina preliminari darbų kaina ir terminas per kiek laiko galite padaryti.
1. Sienų griovimas
2. Betoninių laiptų įrengimas
3. Plokščio betoninio stogo įrengimas
Pridedu esamo namo dokumentus, nuotraukas ir norimo rekonstrukcijos projekto brežinius. Domina preliminari darbų kaina ir terminas per kiek laiko galite padaryti.
Stasys
Kaunas
Tomas,
Kaunas
2025-10-01
Reikalinga mūrininkų brigada atlikti mūro darbus
Reikalinga mūrininkų brigada atlikti mūro darbus:Silikatinis mūras-250mm, pertvaros, silikatinių plytų mūras, monolitinės sąramos, žiedai, perdangos plokštės. Reikalinga sąskaita.
Tomas
Kaunas
K.K.,
Kaunas
2025-09-30
Murininkai
3 aukštų daugiabutis Kaune
1. išorinės sienos keramikiniai blokeliai 25 cm ~400 kv.m ant skiedinio
2. Vidines silikatiniai blokeliai 25 cm ~380 kv.m ant skiedinio
3. 82 perdangos plokštes
Medžiagas visas duodame!!!! TIK DARBAS
Tik su sąskaita-faktūra su mokesčiais ir aktavimu apmokėjimas p...
1. išorinės sienos keramikiniai blokeliai 25 cm ~400 kv.m ant skiedinio
2. Vidines silikatiniai blokeliai 25 cm ~380 kv.m ant skiedinio
3. 82 perdangos plokštes
Medžiagas visas duodame!!!! TIK DARBAS
Tik su sąskaita-faktūra su mokesčiais ir aktavimu apmokėjimas p...
Žiūrėti daugiau »
3 aukštų daugiabutis Kaune
1. išorinės sienos keramikiniai blokeliai 25 cm ~400 kv.m ant skiedinio
2. Vidines silikatiniai blokeliai 25 cm ~380 kv.m ant skiedinio
3. 82 perdangos plokštes
Medžiagas visas duodame!!!! TIK DARBAS
Tik su sąskaita-faktūra su mokesčiais ir aktavimu apmokėjimas pagal susitarimą.
Galimas avansinis mokėjimas.
Laukčiau pasiūlymų kada galite ir kokios kainos!!!
1. išorinės sienos keramikiniai blokeliai 25 cm ~400 kv.m ant skiedinio
2. Vidines silikatiniai blokeliai 25 cm ~380 kv.m ant skiedinio
3. 82 perdangos plokštes
Medžiagas visas duodame!!!! TIK DARBAS
Tik su sąskaita-faktūra su mokesčiais ir aktavimu apmokėjimas pagal susitarimą.
Galimas avansinis mokėjimas.
Laukčiau pasiūlymų kada galite ir kokios kainos!!!
K.K.
Kaunas
Baltic,
Kaunas
2025-09-26
2
Poliai, betonavimas, armavimas, mūrijimas
Laba diena, vykdome darbus SAVANORIŲ PR. (nuasmeninta), KAUNE, ir ieškome Rangovo galinčio atlikti:
lifto šachtos įrengimo darbus (polių įrengimas, prieduobės armavimas betonavimas, mūro su monolitiniu žiedu įrengimas.
Taip pat monolitinės plokštės armavimo betonavimo darbai (lauke)
Šiuos darb...
lifto šachtos įrengimo darbus (polių įrengimas, prieduobės armavimas betonavimas, mūro su monolitiniu žiedu įrengimas.
Taip pat monolitinės plokštės armavimo betonavimo darbai (lauke)
Šiuos darb...
Žiūrėti daugiau »
Laba diena, vykdome darbus SAVANORIŲ PR. (nuasmeninta), KAUNE, ir ieškome Rangovo galinčio atlikti:
lifto šachtos įrengimo darbus (polių įrengimas, prieduobės armavimas betonavimas, mūro su monolitiniu žiedu įrengimas.
Taip pat monolitinės plokštės armavimo betonavimo darbai (lauke)
Šiuos darbus norėtume pradėti kaip įmanoma ankščiau spalio pradžioje.
Kontaktai dėl objeto apžiūros, informacijos suteikimo Matas.
lifto šachtos įrengimo darbus (polių įrengimas, prieduobės armavimas betonavimas, mūro su monolitiniu žiedu įrengimas.
Taip pat monolitinės plokštės armavimo betonavimo darbai (lauke)
Šiuos darbus norėtume pradėti kaip įmanoma ankščiau spalio pradžioje.
Kontaktai dėl objeto apžiūros, informacijos suteikimo Matas.
Baltic
Kaunas
Saulius,
Kaunas
2025-09-26
1
Mūro darbai, mūrijimas
Sveiki,
Kauno r., Lapių miestelyje reikalingas rangovas mūro darbams – planuojama statyti 2 trijų aukštų (2x740kv.) daugiabučius.
MURAS 250 Keramika, Perdangos, Saramos, 8 vnt BALKONAI (Vieno namo)
Mūro darbų pradžia būtų maždaug po 1 mėnesio, šiuo metu jau pradėti pamatų darbai.
Pridedu S...
Kauno r., Lapių miestelyje reikalingas rangovas mūro darbams – planuojama statyti 2 trijų aukštų (2x740kv.) daugiabučius.
MURAS 250 Keramika, Perdangos, Saramos, 8 vnt BALKONAI (Vieno namo)
Mūro darbų pradžia būtų maždaug po 1 mėnesio, šiuo metu jau pradėti pamatų darbai.
Pridedu S...
Žiūrėti daugiau »
Sveiki,
Kauno r., Lapių miestelyje reikalingas rangovas mūro darbams – planuojama statyti 2 trijų aukštų (2x740kv.) daugiabučius.
MURAS 250 Keramika, Perdangos, Saramos, 8 vnt BALKONAI (Vieno namo)
Mūro darbų pradžia būtų maždaug po 1 mėnesio, šiuo metu jau pradėti pamatų darbai.
Pridedu SK.
Kokias kaina galetumete pasiulyti?
Kauno r., Lapių miestelyje reikalingas rangovas mūro darbams – planuojama statyti 2 trijų aukštų (2x740kv.) daugiabučius.
MURAS 250 Keramika, Perdangos, Saramos, 8 vnt BALKONAI (Vieno namo)
Mūro darbų pradžia būtų maždaug po 1 mėnesio, šiuo metu jau pradėti pamatų darbai.
Pridedu SK.
Kokias kaina galetumete pasiulyti?
Saulius
Kaunas
Siųsk užklausą visiems
Apdorota 492 683 užklausų.
Gauk pasiūlymus, išsirink tinkamiausią.