Stankus D.,
Kauno r.
prieš 23 val.
Blokelių mūras 4 namai Kauno raj.
Mūras - 180 mm. kiekis 23 m3
keramikiniai arba silikatiniai blokeliai - kaina m3.
Monolitinis žiedas prieš perdangą su sąramomis 39 m - kaina m.
Perdangos plokščių montavimas su inkaravimu 10 vnt. - kaina vnt.
keramikiniai arba silikatiniai blokeliai - kaina m3.
Monolitinis žiedas prieš perdangą su sąramomis 39 m - kaina m.
Perdangos plokščių montavimas su inkaravimu 10 vnt. - kaina vnt.
Stankus D.
Kauno r.
Egidijus,
Vilnius
vakar
2
Blokeliu murijimas
Laba deina,
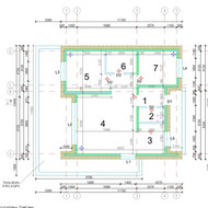
Planuojame statybą Vilniuje, Bajorų pusėje – dvibutį namą, dviejų aukštų, bendras plotas apie 500 m².
Šiuo metu ieškome paslaugų:
Pamatų įrengimas, įskaitant polius su klojinais/grežimais, pilnas pamatų įrengimas;
Mūro darbai (statyba iš keramikinių blokelių);
Stogo darbai – jei...
Planuojame statybą Vilniuje, Bajorų pusėje – dvibutį namą, dviejų aukštų, bendras plotas apie 500 m².
Šiuo metu ieškome paslaugų:
Pamatų įrengimas, įskaitant polius su klojinais/grežimais, pilnas pamatų įrengimas;
Mūro darbai (statyba iš keramikinių blokelių);
Stogo darbai – jei...
Žiūrėti daugiau »
Laba deina,
Planuojame statybą Vilniuje, Bajorų pusėje – dvibutį namą, dviejų aukštų, bendras plotas apie 500 m².
Šiuo metu ieškome paslaugų:
Pamatų įrengimas, įskaitant polius su klojinais/grežimais, pilnas pamatų įrengimas;
Mūro darbai (statyba iš keramikinių blokelių);
Stogo darbai – jei užsiimate, būtų aktualu;
Galimybė turėti pastolius darbų metu.
Pridedu projektinius brėžinius, kad galėtumėte įvertinti darbų apimtį.
Planuojama darbų pradžia – pavasarį 2026 m.
Būtų malonu gauti Jūsų preliminarų kainos pasiūlymą ir darbų atlikimo terminus.
Planuojame statybą Vilniuje, Bajorų pusėje – dvibutį namą, dviejų aukštų, bendras plotas apie 500 m².
Šiuo metu ieškome paslaugų:
Pamatų įrengimas, įskaitant polius su klojinais/grežimais, pilnas pamatų įrengimas;
Mūro darbai (statyba iš keramikinių blokelių);
Stogo darbai – jei užsiimate, būtų aktualu;
Galimybė turėti pastolius darbų metu.
Pridedu projektinius brėžinius, kad galėtumėte įvertinti darbų apimtį.
Planuojama darbų pradžia – pavasarį 2026 m.
Būtų malonu gauti Jūsų preliminarų kainos pasiūlymą ir darbų atlikimo terminus.
Egidijus
Vilnius
Egidijus,
Vilnius
vakar
2
Pamatai
Laba deina,
Planuojame statybą Vilniuje, Bajorų pusėje – dvibutį namą, dviejų aukštų, bendras plotas apie 500 m².
Šiuo metu ieškome paslaugų:
Pamatų įrengimas, įskaitant polius su klojinais/grežimais, pilnas pamatų įrengimas;
Mūro darbai (statyba iš keramikinių blokelių);
Stogo darbai – jei...
Planuojame statybą Vilniuje, Bajorų pusėje – dvibutį namą, dviejų aukštų, bendras plotas apie 500 m².
Šiuo metu ieškome paslaugų:
Pamatų įrengimas, įskaitant polius su klojinais/grežimais, pilnas pamatų įrengimas;
Mūro darbai (statyba iš keramikinių blokelių);
Stogo darbai – jei...
Žiūrėti daugiau »
Laba deina,
Planuojame statybą Vilniuje, Bajorų pusėje – dvibutį namą, dviejų aukštų, bendras plotas apie 500 m².
Šiuo metu ieškome paslaugų:
Pamatų įrengimas, įskaitant polius su klojinais/grežimais, pilnas pamatų įrengimas;
Mūro darbai (statyba iš keramikinių blokelių);
Stogo darbai – jei užsiimate, būtų aktualu;
Galimybė turėti pastolius darbų metu.
Pridedu projektinius brėžinius, kad galėtumėte įvertinti darbų apimtį.
Planuojama darbų pradžia – pavasarį 2026 m.
Būtų malonu gauti Jūsų preliminarų kainos pasiūlymą ir darbų atlikimo terminus.
Planuojame statybą Vilniuje, Bajorų pusėje – dvibutį namą, dviejų aukštų, bendras plotas apie 500 m².
Šiuo metu ieškome paslaugų:
Pamatų įrengimas, įskaitant polius su klojinais/grežimais, pilnas pamatų įrengimas;
Mūro darbai (statyba iš keramikinių blokelių);
Stogo darbai – jei užsiimate, būtų aktualu;
Galimybė turėti pastolius darbų metu.
Pridedu projektinius brėžinius, kad galėtumėte įvertinti darbų apimtį.
Planuojama darbų pradžia – pavasarį 2026 m.
Būtų malonu gauti Jūsų preliminarų kainos pasiūlymą ir darbų atlikimo terminus.
Egidijus
Vilnius
UAB D.,
Kaunas
2026-01-14
Reikalinga sumūryti senoviškomis plytomis dvigubą pertvarą
Pertvara tarp butų pastate Kaune Partizanų g.
UAB D.
Kaunas
Egidijus B.,
Kaunas
2026-01-13
1
Ieškau gerų meistrų mūro darbams
Ieškau kas galėtų sumūryti vieno aukšto gyvenamąjį namą Kauno apskr. Zapyškio sen. Šiuliuose, pagal pridėtą projektą.
Kiek kainuoja mūrijimas Fibo Proof 250mm pločio blokeliais?
Skaičiuojama už kūbą ar už kv metrą?
Kiek kainuotų šito gyvenamojo namo mūro darbai?
Kiek kainuoja mūrijimas Fibo Proof 250mm pločio blokeliais?
Skaičiuojama už kūbą ar už kv metrą?
Kiek kainuotų šito gyvenamojo namo mūro darbai?
Egidijus B.
Kaunas
Raimondas,
Vilnius
2026-01-13
Mūro darbai, mūrijimas
Dezute,du aukstai,250kv
Patirtis
Kruopstumas
Rekomendacija
Konsultacija
Patirtis
Kruopstumas
Rekomendacija
Konsultacija
Raimondas
Vilnius
Dainius S.,
Vilnius
2026-01-12
2
Mūro darbai iš silikatinių blokų
Nuo kovo mėnesio reikalingi mūrininkai (-as) gyv. namui su garažu 147 m2 per 2 aukštus. Blokeliai silikatiniai M24 ir M18. Pamatai yra, reikia išmūryti sienas, sumontuoti perdangų plokštes, išlieti sąramas. Projekto dalys pridedamos, obj. Pilaitėje - daugiau info telefonu.
Dainius S.
Vilnius
Martynas,
Kaunas
2026-01-12
Mūro darbai, mūrijimas
Pakelti 3 auksta, esamui 2aukstu namui. Ramuciai. Kai tik leis orai.
Ziedas 15cm
Perimetras apie 60m aukstis 1.6m
Centrine nesanti siena 14m aukstis 3.5m
Ziedas
Keramikiniai blokeliai 25
Ziedas 15cm
Perimetras apie 60m aukstis 1.6m
Centrine nesanti siena 14m aukstis 3.5m
Ziedas
Keramikiniai blokeliai 25
Martynas
Kaunas
Mindaugas V.,
Utenos r.
2026-01-12
Mūrijimas
ISO Span blokelių mūrijimas gyvenamui namui. Blokeliai tarpusavyje klijuojasi putomis ir armuojasi , namo šlaitų nera , stogas sutapdintas.
Mindaugas V.
Utenos r.
Lukosius N.,
Šilalės r.
2026-01-11
Silales rajone reikia pamuryti troboje nauja peciu kas galite kokia kaina
Silales rajone kaime reikia pamuryti peciu ,kas gali kokia kaina
Lukosius N.
Šilalės r.
Anicetas V.,
Šiauliai
2026-01-08
Murininkai
Reikalingi mūrininkai arko blokelių mūras 250 mm storio.
180 m3.
180 m3.
Anicetas V.
Šiauliai
Aleksandras,
Vilnius
2026-01-07
1
Mūrijimas
Reikia užmūryti ~10-15kvm angų. Vilnius, Krokuvos g. Artimiausiu metu, su savo medžiagomis
Aleksandras
Vilnius
Jonas,
Vilnius
2026-01-06
Mūro darbai Vilniuje
Laba diena,
Ieškome įmonės ar brigadų mūro darbams atlikti daugiabučio statybose. Darbas nuo Vasario mėn. pabaigos iki Liepos vidurio Vilniuje.
Ieškome įmonės ar brigadų mūro darbams atlikti daugiabučio statybose. Darbas nuo Vasario mėn. pabaigos iki Liepos vidurio Vilniuje.
Jonas
Vilnius
Vainius,
Kauno r.
2026-01-04
Statybos / renovacijos darbai
Ieškomas rangovas rekonstruoti seną buto dalį.
Trumpai detalizuojami svarbiausi darbai:
1 etapas (darbai 30m2 patalpoje. Ji buvo neįrengta su anksčiau vykusia rekonstrukcija ir dabar norima ten padaryti Virtuvę)
- Nešančios sienos griovimas ir sąramos darymas
- Griovimo/Mūrijimo darbai
- Gr...
Trumpai detalizuojami svarbiausi darbai:
1 etapas (darbai 30m2 patalpoje. Ji buvo neįrengta su anksčiau vykusia rekonstrukcija ir dabar norima ten padaryti Virtuvę)
- Nešančios sienos griovimas ir sąramos darymas
- Griovimo/Mūrijimo darbai
- Gr...
Žiūrėti daugiau »
Ieškomas rangovas rekonstruoti seną buto dalį.
Trumpai detalizuojami svarbiausi darbai:
1 etapas (darbai 30m2 patalpoje. Ji buvo neįrengta su anksčiau vykusia rekonstrukcija ir dabar norima ten padaryti Virtuvę)
- Nešančios sienos griovimas ir sąramos darymas
- Griovimo/Mūrijimo darbai
- Grindu rekonstrukcija (išardymas, betonavimas)
- Nuotekų atvedimas ir paruošimas
- Elektros instaliacijos atvedimas ir paruošimas
- Vidaus apdailos darbai (apdaila aplink langus, sienos, grindys)
2 etapas (darbai jau anksčiau rekonstruotuose 3 juose kambariuose 60 m3)
- Grindu rekonstukcija (išardymas, betonavimas)
- Elektros instaliacijos taškų pakeitimai
- Vidaus apdaila (sienos perdažymas)
- Vidaus apdaila duše (sienų perdažymas)
Ko ieškom: vienos įmonės/atstovo galinčio apsiimti visą rekonstrukcija. Galim detalizuoti planuojamus darbus, priimti apžiūrai ar pateikti preliminarius brėžinius.
Trumpai detalizuojami svarbiausi darbai:
1 etapas (darbai 30m2 patalpoje. Ji buvo neįrengta su anksčiau vykusia rekonstrukcija ir dabar norima ten padaryti Virtuvę)
- Nešančios sienos griovimas ir sąramos darymas
- Griovimo/Mūrijimo darbai
- Grindu rekonstrukcija (išardymas, betonavimas)
- Nuotekų atvedimas ir paruošimas
- Elektros instaliacijos atvedimas ir paruošimas
- Vidaus apdailos darbai (apdaila aplink langus, sienos, grindys)
2 etapas (darbai jau anksčiau rekonstruotuose 3 juose kambariuose 60 m3)
- Grindu rekonstukcija (išardymas, betonavimas)
- Elektros instaliacijos taškų pakeitimai
- Vidaus apdaila (sienos perdažymas)
- Vidaus apdaila duše (sienų perdažymas)
Ko ieškom: vienos įmonės/atstovo galinčio apsiimti visą rekonstrukcija. Galim detalizuoti planuojamus darbus, priimti apžiūrai ar pateikti preliminarius brėžinius.
Vainius
Kauno r.
Sodas,
Prienų r.
2026-01-04
2
Saramos keitimas
Reikia pakeisti sarama, nes griuva siena. Namas uz Prienu.
Sodas
Prienų r.
Siųsk užklausą visiems
Apdorota 510 673 užklausų.
Gauk pasiūlymus, išsirink tinkamiausią.