Rolandas,
Klaipėda
prieš 22 val.
Ieškau kas padarytu terasa medžiagos mano
Ilgis 9m.plotis3m.reikalingi turėklai,2 laipteliu pakopos ir gale terasos ileisti kubila 60cm.
Rolandas
Klaipėda
Vilius,
Vilnius
2025-10-07
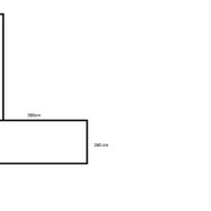
Reikalinga terasa 48kv
Reikalinga 48kv terasa, L forma.
Kuo pigesnis variantas, reikia kartu su medžiagomis.
Kuo pigesnis variantas, reikia kartu su medžiagomis.
Vilius
Vilnius
Vytautas S.,
Marijampolė
2025-10-06

Terasų įrengimas
Yra terasa 12 m2
Grindys betoninės
Reikia pakloti ir nudažyti terasine lentą ant grindu ir šonuose
Grindys betoninės
Reikia pakloti ir nudažyti terasine lentą ant grindu ir šonuose
Vytautas S.
Marijampolė
Vytautas S.,
Marijampolė
2025-10-06

Terasų įrengimas
Yra maža terasa
Grindys betoninės
Reikia pakloti ir nudažyti terasine lentą viršuje ir šonuose
Plotas yra apie 12 m2 lentą
Grindys betoninės
Reikia pakloti ir nudažyti terasine lentą viršuje ir šonuose
Plotas yra apie 12 m2 lentą
Vytautas S.
Marijampolė
Romualdas,
Rokiškio r.
2025-10-06

Medžio darbai, staliai
Terasos įrengimas balkone. Hidroizoliacija atliksiu pats. Galimas aukštis iki 9 cm. Lentutės - kaitinta mediena arba plastiko kompozitas.
Romualdas
Rokiškio r.
Alma G.,
Klaipėda
2025-10-02
Terasų įrengimas
Terasos Ilgis 8,60 m ,
plotis 3,50 m ,
nuo žemės 0,80 cm ,
du šonai ( 30,10 m2 ) ,
stogas sustiprintas su grūdinto tonuoto stiklo danga ir montavimo darbais ,
sienų stiklinimas stumdomomis skaidraus stiklo sistemomis su montavimo darbais ,
grindys terasai - su montavimo darbais .
Kaina
Kaipė...
plotis 3,50 m ,
nuo žemės 0,80 cm ,
du šonai ( 30,10 m2 ) ,
stogas sustiprintas su grūdinto tonuoto stiklo danga ir montavimo darbais ,
sienų stiklinimas stumdomomis skaidraus stiklo sistemomis su montavimo darbais ,
grindys terasai - su montavimo darbais .
Kaina
Kaipė...
Žiūrėti daugiau »
Terasos Ilgis 8,60 m ,
plotis 3,50 m ,
nuo žemės 0,80 cm ,
du šonai ( 30,10 m2 ) ,
stogas sustiprintas su grūdinto tonuoto stiklo danga ir montavimo darbais ,
sienų stiklinimas stumdomomis skaidraus stiklo sistemomis su montavimo darbais ,
grindys terasai - su montavimo darbais .
Kaina
Kaipėdos r.
Priekulės sen.
Keleivių 70
Alma
plotis 3,50 m ,
nuo žemės 0,80 cm ,
du šonai ( 30,10 m2 ) ,
stogas sustiprintas su grūdinto tonuoto stiklo danga ir montavimo darbais ,
sienų stiklinimas stumdomomis skaidraus stiklo sistemomis su montavimo darbais ,
grindys terasai - su montavimo darbais .
Kaina
Kaipėdos r.
Priekulės sen.
Keleivių 70
Alma
Alma G.
Klaipėda
Del t.,
Vilnius
2025-09-29
Terasos montavimas
Buvo betoninis pagrindas, tada ant pjedestalu sudejau dviguba metalini karkasa ir ant jo wpc pilnavidures lentas. Reikia pabaigti apdirbti terasa: nupjauti galus, sumontuoti sonus (apdailines lentutes), sudeti led juosta. Terasos matmenys - 5,5x5 metru, staciakampio formos. Perimetras apdailinems le...
Žiūrėti daugiau »
Buvo betoninis pagrindas, tada ant pjedestalu sudejau dviguba metalini karkasa ir ant jo wpc pilnavidures lentas. Reikia pabaigti apdirbti terasa: nupjauti galus, sumontuoti sonus (apdailines lentutes), sudeti led juosta. Terasos matmenys - 5,5x5 metru, staciakampio formos. Perimetras apdailinems lentutems gaunasi apie 13-14 metru. Apvalumu ar kitokiu nesamoniu nera, visur status kampai, kabeliai atvesti jau, reikia tik led su profiliu.
Del t.
Vilnius
Andrius,
Jonavos r.
2025-09-26
Terasų įrengimas
Sveiki,
ieškome kas gali įrengti terasas Kalnų g.(nuasmeninta), Jonava.
10 vnt. terasų - 2,24 x 5,13 m
Visas medžiagas suteiksime.
Jūsų apimtyje darbas, mechanizmai reikalingi darbams atlikti:
1. Polių betonavimas
2. Geotekstilės paklojimas
3. Karkaso (viengubo arba dvigubo) įrengimas, aptar...
ieškome kas gali įrengti terasas Kalnų g.(nuasmeninta), Jonava.
10 vnt. terasų - 2,24 x 5,13 m
Visas medžiagas suteiksime.
Jūsų apimtyje darbas, mechanizmai reikalingi darbams atlikti:
1. Polių betonavimas
2. Geotekstilės paklojimas
3. Karkaso (viengubo arba dvigubo) įrengimas, aptar...
Žiūrėti daugiau »
Sveiki,
ieškome kas gali įrengti terasas Kalnų g.(nuasmeninta), Jonava.
10 vnt. terasų - 2,24 x 5,13 m
Visas medžiagas suteiksime.
Jūsų apimtyje darbas, mechanizmai reikalingi darbams atlikti:
1. Polių betonavimas
2. Geotekstilės paklojimas
3. Karkaso (viengubo arba dvigubo) įrengimas, aptarsime susitikimo metu.
4. Terasinių lentų (giluminio mirkimo) montavimas paslėptu būdu (viršus, šonai pilnai uždengiami lentomis)
5. Terasinių lentų dažymas arba alavavimas
Pagarbiai
Andrius
Projektų vadovas
ieškome kas gali įrengti terasas Kalnų g.(nuasmeninta), Jonava.
10 vnt. terasų - 2,24 x 5,13 m
Visas medžiagas suteiksime.
Jūsų apimtyje darbas, mechanizmai reikalingi darbams atlikti:
1. Polių betonavimas
2. Geotekstilės paklojimas
3. Karkaso (viengubo arba dvigubo) įrengimas, aptarsime susitikimo metu.
4. Terasinių lentų (giluminio mirkimo) montavimas paslėptu būdu (viršus, šonai pilnai uždengiami lentomis)
5. Terasinių lentų dažymas arba alavavimas
Pagarbiai
Andrius
Projektų vadovas
Andrius
Jonavos r.
DALIA Z.,
Vilnius
2025-09-24
Terasų įrengimas
Reikia padaryti terasą su stogu sodyboje prie Vilniaus. Maždaug apie 15 kv metrų
DALIA Z.
Vilnius
Paulius S.,
Kaunas
2025-09-24
Terasos ir stoginės įrengimas
Reikalinga L formos ~40kvm termo terasa Kauno mieste. Taip pat 22kvm aliuminė stoginė. Domina techninis išpildymas, reikalinga konsultacija objekte.
Paulius S.
Kaunas
Gediminas,
Vilnius
2025-09-24

Terasos
Sveiki,domina terasa, stoginė pilkos spalvos Aliuminio Stoginė 7000x3500 (24,5 m2) rėminį sienų stiklinimą – stumdoma sistema. Sienos SKAIDRIU grūdintu stiklu su optimaliais aukščiais. (30,34 m2),taip pat grindys terasinės lentos
Gediminas
Vilnius
Aleksandr S.,
Klaipėdos r.
2025-09-23
Pastatykite slenkstį į privataus namo terasą
Pastatyti slenkstį iš grindinio plokščių įėjimui į privataus namo terasą. Terasa yra po stogeliu namo kampe. Slenkstis yra abiejose įėjimo į terasą pusėse. Slenksčio ilgis kiekvienoje pusėje yra 3 metrai (bendras slenksčio ilgis yra maždaug 6 metrai). Slenksčio aukštis yra 35 cm. Namas yra Tryšelių ...
Žiūrėti daugiau »
Pastatyti slenkstį iš grindinio plokščių įėjimui į privataus namo terasą. Terasa yra po stogeliu namo kampe. Slenkstis yra abiejose įėjimo į terasą pusėse. Slenksčio ilgis kiekvienoje pusėje yra 3 metrai (bendras slenksčio ilgis yra maždaug 6 metrai). Slenksčio aukštis yra 35 cm. Namas yra Tryšelių kaime, Klaipėdos rajone.
Aleksandr S.
Klaipėdos r.
Ignas F.,
Kaunas
2025-09-23

Suprojektuoti ir atlikti kiemo apželdinimą, laistymą, terasą
Ieškome kas galėtų pradžioj patarti, suprojektuoti kiemo apsodinimą, apšvietimą, laistymo sistemą, terasą ir įvertintų sąmatą, o pavasarį atliktų darbus. Geriausia butų viskas iš vienų rankų, bet tinka ir atskirai.
Ignas F.
Kaunas
Vaida P.,
Panevėžys
2025-09-22
Terasų įrengimas
Reikalinga terasa. su stumdomais langais, ant polių 7x5
Vaida P.
Panevėžys
Dėl t.,
Vilnius
2025-09-22

Terasos įrengimas
Norime įsirengti terasą apie 3 pločio, 5 m ilgio, su laiptu perimetru (iš trijų pusių), aukštis apie 40 cm prie palangės. Iš termo pušies, medinio karkaso, spalva antracitas. Lauksiu pasiūlymų su kaina ir terminais. Vilnius, Avižieniai
Dėl t.
Vilnius
Siųsk užklausą visiems
Apdorota 487 025 užklausų.
Gauk pasiūlymus, išsirink tinkamiausią.