Rasa S.,
Vilnius
prieš 21 val.
1
Vidaus apdaila, gipskartonio montavimas
- 150 mm gipso kartono pertvaros, 50 mm gipso kartono apsiuvimai, G/k lubos ir kaktos
- Sienų ir lubų glaistymas, dažymas
- Plytelių klijavimas
- Sienų ir lubų glaistymas, dažymas
- Plytelių klijavimas
Rasa S.
Vilnius
Laurynas,
Vilnius
vakar
Reikia irengti gipso pertvaras
Reikia irengti gipso pertvaras Vilniuje
Laurynas
Vilnius
Marius,
Vilnius
2025-10-07

Gipso pertvarų montavimas
Reikalinga pertvarų montavimo paslauga pagal pridedamą planą (papildomai vieno wc rėmo apsiuvimas 1-ame aukšte).
Domina pleriminari darbų kaina su medžiagomis ir be medžiagų, terminais kada darbai gali būti pradėti ir kiek užtruks jų atlikimas.
Domina pleriminari darbų kaina su medžiagomis ir be medžiagų, terminais kada darbai gali būti pradėti ir kiek užtruks jų atlikimas.
Marius
Vilnius
Dėl g.,
Vilnius
2025-10-07
Ieškau gipso montuotojų
Ieškau gipso kartono meistrų, pagrinde pertvaros.
Projektai Vilniuje.
Pradėti kuo greičiau.
Projektai Vilniuje.
Pradėti kuo greičiau.
Dėl g.
Vilnius
Eduard B.,
Vilnius
2025-10-06
Gipso kartono lubu montavimas
Gipso cartono lubu montavimas 1- 2-bas karkasas ,2-bas gibsas.apie 100m2. 2-2-bas karkasas perforuotas gibsas.apie 80m2. Vilnius.skubiai
Eduard B.
Vilnius
Romualdas,
Vilnius
2025-10-03
Gipso montavimas
Man nuosavame name reikia padaryti lubas dvigubo gipso apie 90 m2 ir pertvaras dviguvo, taip pat apie 100 m2. kolkas domiuosi tik kaina, dar skubėti atlikti darbų nereikia.
Romualdas
Vilnius
Gytis B,
Vilnius
2025-10-03

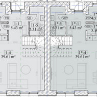
Ieškau žmogaus, arba įmonės sumontuoti gipso pertvaras
Reikia sumontuoti gipso pertvaras, neskubu, 1-3 mėn bėgyje. Pridedu buto plana, raudonai pažymėtos vietos, kur reikėtų pertvarų. Apatinėje sienoje reikėtų sudėti 2 persistumiančius sluoksnius izover 20mm vatos, susukti gipsą, kad būtų geresnė garso izoliacija (arba galbūt turite ką parekomenduoti ge...
Žiūrėti daugiau »
Reikia sumontuoti gipso pertvaras, neskubu, 1-3 mėn bėgyje. Pridedu buto plana, raudonai pažymėtos vietos, kur reikėtų pertvarų. Apatinėje sienoje reikėtų sudėti 2 persistumiančius sluoksnius izover 20mm vatos, susukti gipsą, kad būtų geresnė garso izoliacija (arba galbūt turite ką parekomenduoti geriau?). Lubų aukštis apie 2.7m.
Gipso gaunasi apie 28kv/m. Iškart rašykite bendrą kainą su medžiagomis.
Gipso gaunasi apie 28kv/m. Iškart rašykite bendrą kainą su medžiagomis.
Gytis B
Vilnius
Eduard B.,
Vilnius
2025-10-02
Vilnius skubiai Gipso lubos
Gipso kartono lubu montavimas 1- 2-bas karkasas ,2-bas gibsas.apie 80m2.2-2-bas karkasas perforuotas gibsas.apie 120m2. Vilnius.skubiai
Eduard B.
Vilnius
Stankus D.,
Vilnius
2025-10-02
Gipso kartono montavimas Vilniuje 1800 m2
Gipso kartono montavimas 1800 m2 Vilniuje
Lubos dvigubas karkasas ir 2 sl. gipso kartono - kiekis 1000 m2
Pertvaros karkasas 100mm, vata ir po 2 sl. gipso kartono iš abiejų pusių - kiekis 800 m2
Lubos dvigubas karkasas ir 2 sl. gipso kartono - kiekis 1000 m2
Pertvaros karkasas 100mm, vata ir po 2 sl. gipso kartono iš abiejų pusių - kiekis 800 m2
Stankus D.
Vilnius
Albertas,
Vilnius
2025-10-01

Vidaus apdailos darbai
Reikia apsiųti gipskartoniu pakabinamą tualetą, suvarkyti skylę sienoje. Apklijuoti plytelėmis, įrengti revizines dureles.
Albertas
Vilnius
Aleksas,
Vilnius
2025-10-01
Gipso kartono montavimo darbai
Individualiam namui nedavažiavus Vievio (Alksna) 220 kv.m. individualiam namui reikia sumontuoti gipso kartono lubas, dušo nisas ir kt. Pradėti reiktų +- už dviejų savaičiu. Reikalinga gera kokybė. Kada galėtumėt startuoti ir kokios kainos?
Aleksas
Vilnius
Stankus D.,
Vilnius
2025-10-01
Gipso kartono montavimas 1000 m2 Vilniuje
Lubos dvigubas karkasas ir 2 sl. gipso kartono - 1000 m2
Pertvaros karkasas 100mm, vata ir po 2 sl. gipso kartono iš abiejų pusių - 800 m2
Pertvaros karkasas 100mm, vata ir po 2 sl. gipso kartono iš abiejų pusių - 800 m2
Stankus D.
Vilnius
Mantas,
Vilnius
2025-10-01
Gipsokartono montavimas
Reikia sumontuoti 400 kv m gipso. Gipsas montuojamas laiptineje. 30 metru aukstis. Pastoliai pastatyti. Profiliai statosi kas 30 cm. Vatos nereikia. Sukasi dvigubas gipsas raudonas is vienos puses
Mantas
Vilnius
H., UAB,
Vilnius
2025-09-30
Reikalinga 3-4 žmonių brigada padėti susukti GKP prie metalinio karkaso
Reikalinga 3-4 žmonių brigada padėti susukti GKP prie metalinio karkaso.
Karkasas padarytas, belieka susukti tik gipso plokštes.
Apie 800m2.
Karkasas padarytas, belieka susukti tik gipso plokštes.
Apie 800m2.
H., UAB
Vilnius
Laimonas,
Vilnius
2025-09-30

Gipso kartono montavimas
Po langų keitimo reikia sutvarkyti 6 langų angokraščius ir po šildymo vamzdžių keitimo - 6 vamzdžių vietas. Prisegu nuotraukas
Laimonas
Vilnius
Gauk meistrų pasiūlymus
Apdorota 486 849 užklausų.
Išsirink tinkamiausią. ⏱️Sutaupyk laiko.