Paulius,
Vilnius
prieš 4 val.

Termostato vonioje keitimas
Sveiki.
Ieškau elektriko-meistro kuris padėtų išrinkti/nupirkti tinkamą termostatą (ant sienos vonioje) ir pakeistų esamą, firmos "Veria", kuris sugedo.
Vilnius, Naujamiestis (priešais Savanorių Rimi "Mylia").
Ieškau elektriko-meistro kuris padėtų išrinkti/nupirkti tinkamą termostatą (ant sienos vonioje) ir pakeistų esamą, firmos "Veria", kuris sugedo.
Vilnius, Naujamiestis (priešais Savanorių Rimi "Mylia").
Paulius
Vilnius
S., UAB,
Vilnius
prieš 5 val.
5
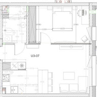
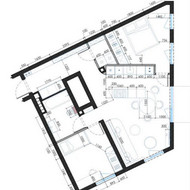
Reikia atlikti 4-ių butų remontą Vilniuje
Reikia atlikti 4-ių butų remontą Vilniuje. Samata pridedama - joje atskirai parodytos sumos už medžiagas ir darbus. Pridedame butų planus ir nuotraukas. Visi ardymo darbai jau atlikti. 1 butas 24 kv.m. = 8300 eur, 2 butas 47 kv.m. = 9400 eur, 3 butas 35 kv.m. = 7090 eur, 4 butas 23 kv.m. = 6700 eur....
Žiūrėti daugiau »
Reikia atlikti 4-ių butų remontą Vilniuje. Samata pridedama - joje atskirai parodytos sumos už medžiagas ir darbus. Pridedame butų planus ir nuotraukas. Visi ardymo darbai jau atlikti. 1 butas 24 kv.m. = 8300 eur, 2 butas 47 kv.m. = 9400 eur, 3 butas 35 kv.m. = 7090 eur, 4 butas 23 kv.m. = 6700 eur.
S., UAB
Vilnius
Rasa,
Vilnius
prieš 5 val.
Boilerio remontas
Boileris nešildo, lemputė nedega. Boileris Drazice 180 (naudojamas apie 8 m.).
Rasa
Vilnius
Povilas K.,
Kaunas
prieš 6 val.

Lauko elektros laidų ir jungčių pakeitimas
Reikia sutvarkyti elektros laidų jungtis lauke (pakeisti jungtis, nusidėvėjusius laidus).
Povilas K.
Kaunas
Rytis,
Anykščių r.
prieš 7 val.

Elektros įvado / įrenginių projektuotojas
Pagal pateiktą iškarpą iš gautų ESO sąlygų reikia parengti projektą.
Siūlykite kainą - imlu laikui.
Galite susisiekti mobiliuoju, Rytis
Siūlykite kainą - imlu laikui.
Galite susisiekti mobiliuoju, Rytis
Rytis
Anykščių r.
Saugos s.,
Šiauliai
prieš 9 val.
Saugos sistema namams
Sveiki,
Ieškau kas galėtu pasiūlyti ir sumontuoti saugos sistema, statomame name... Centralė, davikliai, dūmų davikliai ir .t.t. Jau smulkiau atsakyčiau el. paštu. Objektas Šiauliai
Ieškau kas galėtu pasiūlyti ir sumontuoti saugos sistema, statomame name... Centralė, davikliai, dūmų davikliai ir .t.t. Jau smulkiau atsakyčiau el. paštu. Objektas Šiauliai
Saugos s.
Šiauliai
Vilma,
Klaipėda
prieš 9 val.
Buto remontas
Klaipėdoje reikalingas remontas: virtuvės (7 m2) grindų (laminatas), sienų (tinkas), elektros instaliacijos keitimas, taip pat koridoriaus (5 m2) ir kambario (18 m2) grindų keitimas (laminatas). Domina kaina ir terminai.
Vilma
Klaipėda
Moduliniai p.,
Vilnius
prieš 10 val.
Elektros darbai Vievis
Pajungti 1 vnt. 3f, ir 2 vnt. 1f automatus, pajungti 1 vnt. nuoteku rėle, pajungti 3-4 rozetes.
pajungti dvipoli 1 vnt. jungtuka ir 2 vnt. transformatoriaus LED.
pajungti dvipoli 1 vnt. jungtuka ir 2 vnt. transformatoriaus LED.
Moduliniai p.
Vilnius
Martynas K.,
Vilnius
prieš 10 val.
Elektrikas
Reikalingas elektrikas rozeciu montavimui(kiekis 4 vnt.)
Ir kabelio pravedimas per siena.
Ir kabelio pravedimas per siena.
Martynas K.
Vilnius
Paulisu M. (T.),
Vilnius
prieš 11 val.
Saulės elektrinė
Sveiki,
Domina saulės elektrinės įrengimas su medžiagomis arbe be jų.
7kv
Stogas skarda - čerpių imitacija.
Turiu 1 kv atidavimo sąlyga. Galvoju tiek apie hibridini, tiek ir paprastą inverterį.
Kaupiklio šiuo metu neplanuoju.
Domina saulės elektrinės įrengimas su medžiagomis arbe be jų.
7kv
Stogas skarda - čerpių imitacija.
Turiu 1 kv atidavimo sąlyga. Galvoju tiek apie hibridini, tiek ir paprastą inverterį.
Kaupiklio šiuo metu neplanuoju.
Paulisu M. (T.)
Vilnius
Agnija,
Trakų r.
vakar
Boilerių valymas
Reikia išvalyti boilerį, nes pradėjo bėgti rudas vanduo.
Trakai
Trakai
Agnija
Trakų r.
Dominykas,
Vilniaus r.
vakar

El. skydinės su automatiniais jungikliais įrengimas
Naujos statybos namas, laidai išvesti iš įvairių patalpų (apšvietimas, rozetės, kt.).
Reikia sumontuoti el. skydinę ir sujungti automatus.
Reikia sumontuoti el. skydinę ir sujungti automatus.
Dominykas
Vilniaus r.
Dalia G.,
Šiauliai
vakar

Elektrikai, elektros darbai
Reikalingas elektrikas skubiai turintis sienu skeneri dėl instaliacijos senos gedimo į liustra neateina srovė
Dalia G.
Šiauliai
Kazimieras,
Kaunas
vakar

Autodiagnostika
Labas vakaras,
VW Touran 2014 m. Reikia:
1. Pririšti multifunkcinį vairą.
2. Dega airbag simbolis- nustatyti dėl jo dega bei pagal galimybes panaikinti.
3. Neveikia parkavimo sistema- nustatyti gedima- ar parkas neveikia kažkuris ar grandinė kažkur nutrūkus.
Laukiu tik konkrečių pasiūlym...
VW Touran 2014 m. Reikia:
1. Pririšti multifunkcinį vairą.
2. Dega airbag simbolis- nustatyti dėl jo dega bei pagal galimybes panaikinti.
3. Neveikia parkavimo sistema- nustatyti gedima- ar parkas neveikia kažkuris ar grandinė kažkur nutrūkus.
Laukiu tik konkrečių pasiūlym...
Žiūrėti daugiau »
Labas vakaras,
VW Touran 2014 m. Reikia:
1. Pririšti multifunkcinį vairą.
2. Dega airbag simbolis- nustatyti dėl jo dega bei pagal galimybes panaikinti.
3. Neveikia parkavimo sistema- nustatyti gedima- ar parkas neveikia kažkuris ar grandinė kažkur nutrūkus.
Laukiu tik konkrečių pasiūlymų.
Dėkoju
VW Touran 2014 m. Reikia:
1. Pririšti multifunkcinį vairą.
2. Dega airbag simbolis- nustatyti dėl jo dega bei pagal galimybes panaikinti.
3. Neveikia parkavimo sistema- nustatyti gedima- ar parkas neveikia kažkuris ar grandinė kažkur nutrūkus.
Laukiu tik konkrečių pasiūlymų.
Dėkoju
Kazimieras
Kaunas
Neda J.,
Kaunas
vakar

Ieškau elektriko ( idealu + gipsininko kartu)
Elektra išvedžiota ir sudėta į skydelius jau yra.
Reikalingi darbai:
Korekcijos, kelių laidų pakėlimas, kelių rozečių perkėlimas į kitas vietas, kelių papildomų rozečių padarymas.
Laiptų apšvietimo atvedimas ir išvedžiojimas.
Laidų išmėtymas pagal apšvietimo taškus, nes šiuo metu yra...
Reikalingi darbai:
Korekcijos, kelių laidų pakėlimas, kelių rozečių perkėlimas į kitas vietas, kelių papildomų rozečių padarymas.
Laiptų apšvietimo atvedimas ir išvedžiojimas.
Laidų išmėtymas pagal apšvietimo taškus, nes šiuo metu yra...
Žiūrėti daugiau »
Elektra išvedžiota ir sudėta į skydelius jau yra.
Reikalingi darbai:
Korekcijos, kelių laidų pakėlimas, kelių rozečių perkėlimas į kitas vietas, kelių papildomų rozečių padarymas.
Laiptų apšvietimo atvedimas ir išvedžiojimas.
Laidų išmėtymas pagal apšvietimo taškus, nes šiuo metu yra tik po 1 - 2 pagrindinius laidus pakabinta.
Patarimai ir konsultacija dėl signalizacijos ( išvedžiota) ir Termostatų.
Norime elektriko kuris apsiimtų dabar viską padaryti ir kai jau bus sienos nudažytos ir reiks viską sujungti vėl galėtume bendradarbiauti.
Imetu kaip atrodo patalpos šiuo metu.
Bendras plotas 97,5m2
Reikalingi darbai:
Korekcijos, kelių laidų pakėlimas, kelių rozečių perkėlimas į kitas vietas, kelių papildomų rozečių padarymas.
Laiptų apšvietimo atvedimas ir išvedžiojimas.
Laidų išmėtymas pagal apšvietimo taškus, nes šiuo metu yra tik po 1 - 2 pagrindinius laidus pakabinta.
Patarimai ir konsultacija dėl signalizacijos ( išvedžiota) ir Termostatų.
Norime elektriko kuris apsiimtų dabar viską padaryti ir kai jau bus sienos nudažytos ir reiks viską sujungti vėl galėtume bendradarbiauti.
Imetu kaip atrodo patalpos šiuo metu.
Bendras plotas 97,5m2
Neda J.
Kaunas
Gauk elektrikų pasiūlymus
Apdorota 486 849 užklausų.
Išsirink tinkamiausią. ⏱️Sutaupyk laiko.