Techninių brėžinių braižymas Palangoje
- » Techninių brėžinių braižymas (29)
- » Braižyba „AutoCAD 2D“ programa (22)
- » Braižyba 3D CAD programomis (20)
- » 2D brėžinių braižymas (19)
- » Braižyba „SolidWorks“ programa (18)
- » Braižyba „AutoCAD 3D“ programa (12)
- » Braižyba ranka (3)
Braižau, modeliuoju, kuriu mechanizmus, pavienes detales, liejinius, lankstinius. Esu lankstus. Prisitaikau individ. prie situacijos. Atvykstu į vietą, galimas bendradarbiavimas. Konkurencingos kainos
Esame inžinerinio projektavimo ir konsultacijų komanda. Projektavimas gamybai, projektavimas solidworks, universiteto darbai Padedame studentams pasiruošti atsiskaitymams.
Mechaninių ir stacionarių konstrukcijų projektavimas, Prototipinių ir analoginių konstrukcijų braižymas bei modifikacija. (Inventor/Solidworks) 3D Eskizavimas. Gamybinių brėžinių ruošimas.
Esame alternatyvaus inžinerinio projektavimo ir konsultacijų komanada, teikianti paslaugas gamybos įmonėms ir privatiems klientams. Padedame naujų produktų kurime, esamų plėtojime.
Braižau įvairaus sudėtingumo brėžinius, padėsiu perkelt informaciją iš popieriaus į skaitmeninę versiją. Dirbu greitai ir tvarkingai.
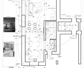
Esam Architektai/dizaineriai siūlantys dizaino ir projektavimo paslaugas. Pateikiam vizualinę medžiagą - nuo idėjos ir pavyzdžių iki techninės priežiūros statybų metu.
Galiu parengti įvairaus tipo brėžinius pagal Jūsų poreikius.
Sveiki, braižau 2D ir 3D brėžinius, perbraižau, surinkimo, detalizavimo brėžiniai. Turite puikių idėju, bet neturite tam laiko, susisiekite padėsiu. Už atliktus darbus galiu išrašyti sąskaitas.
Siūlau profesionalias 3D modeliavimo paslaugas pagal jūsų poreikius. Nedidelių detalių 3D spausdinimas.
MB Kitecho teikia profesionalias paslaugas gamybinėms įmonėms, padedant konstravimo ir gamybos procesuose.
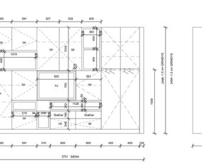
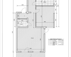
Detalūs produktų brėžiniai 3D; 2D Surinkimo instrukcijos Patalpų išplanavimai Nesudėtingų statinių projektavimas CNC vektorinių failų paruošimas Užklausas siųsti el.p.: [email protected]
Detalių, pramonės įrengimų(konvejerių, liftų, svėrimo ir kt.) projektavimas, surinkimo brėžinių ruošimas, detalių brėžinių ruošimas technologinio apdirbimo operacijoms.
Gabaritinių ir gamybinių brėžinių rengimas, failų paruošimas pjovimui lazeriu ir lankstymui.
3D įvairių pastatų vizualizacijos, namo karkaso įrengimo schemos (lengvai pastatysite pats) , Laiptų projektavimas ir įrengimas Pavėsinių ir automobilių stoginių projektavimas ir įrengimas
9 metų patirtis projektavimo su įvairiausiais projektais. Nuo maisto pramonės baldų, konvejerių, pramoninių šaldymo durų iki metalo konstrukcijų, techninių laiptų, priešgaisrinių kopėčių ir kt.
Specializuojuosi metalo konstrukcijų projektavime: 3D modeliavimas, statinės analizės naudojant baigtinių elementų metodą (FEA) su SolidWorks Simulation, gamybinių ir montavimo brėžinių rengimas.
PDV elektrotechnika iki 110kV + automatika. Vykdymo priežiūros vadovas, ypatingojo statinio specialiųjų statybos darbų vadovo ir techninės priežiūros sritys, visi statiniai, susiekimas, inžineriniai.
Metalo, medienos, plastiko gaminių projektavimas, statiniai skaičiavimai, derinimo/gamybinių brėžinių rengimas, dxf lazeriui, frezavimui, medžiagų/komponentų žiniaraščių (BOM) generavimas ir t.t.
Kokybiškai ir greitai atlieku brėžinius Autocad programa. Turiu Ypatingo statinio Projekto dalies-konstrukcijų vadovo kvalifikacijos atestatą.
Įvairus Brėžiniai , Video. Reklaminiai Video Klipai. Jų Patalpinimas Youtube Plakatai Skrajutės Visi planuojantys ar besistatantis savo busta gali jį susikurti virtualioj aplinkoj.
Siūlau mechanizmų, konstrukcijų konstravimo, 3D modeliavimo, gamybinių brėžinių ruošimo paslaugas. Suprojektuoto įrengimo, gaminio gamybos priežiūra.
Teikiame brėžinių braižymo paslaugas, braižome 3D, darome brėžinių detalizacijas galime nubraižyti pagaminto produkto ar įrengimo gamybinius brėžinius, frezavimui, suvirinimui, metalo lankstymui.
Klientų užklausos

Parašykite atsakymą su kaina ir per kiek laiko padarytumėte. (Domina ilgalaikis bendradarbiavimas).
Domina kaina ir terminas

- Detalių darbo ir surinkimo brėžinių sudarymas AutoCAD/SolidWorks programomis;
- 3D modelių kūrimas SolidWorks programa;
- Statinių analizių atlikimas SolidWorks programa;
- AutoCAD ir (arba) SolidWorks programų naudojimo mokymai.
Turiu 2 metų braižybos ir modeliavimo pa...
Žiūrėti daugiau »
- Detalių darbo ir surinkimo brėžinių sudarymas AutoCAD/SolidWorks programomis;
- 3D modelių kūrimas SolidWorks programa;
- Statinių analizių atlikimas SolidWorks programa;
- AutoCAD ir (arba) SolidWorks programų naudojimo mokymai.
Turiu 2 metų braižybos ir modeliavimo patirtį. Tai ne tik mano studijų krypties (mechanikos inžinerijos) esminis įgūdis, bet ir pomėgis, kuriuo užsiimu laisvalaikiu.
Kainos
Kategorija / Paslauga | Kaina nuo | Vidutinė kaina | Paslaugų teikėjai |
---|---|---|---|
Techninių brėžinių braižymas | 10-20 €/h | 14 €/h | Paslaugų teikėjai » |
Braižyba 3D CAD programomis | 10-20 €/h | 15 €/h | Paslaugų teikėjai » |
2D brėžinių braižymas | 10-15 €/h | 12 €/h | Paslaugų teikėjai » |
Braižyba ranka | 10-20 €/h | 13 €/h | Paslaugų teikėjai » |
Braižyba „SolidWorks“ programa | 10-20 €/h | 15 €/h | Paslaugų teikėjai » |
Braižyba „AutoCAD 3D“ programa | 5-20 €/h | 14 €/h | Paslaugų teikėjai » |
Braižyba „AutoCAD 2D“ programa | 8-18 €/h | 12 €/h | Paslaugų teikėjai » |
Dažniausi klausimai
-
Techninių brėžinių braižymas Palangoje - kurie paslaugos teikėjai yra geriausi?
-
Techninių brėžinių braižymas Palangoje - kurie paslaugos teikėjai pigiausi?
-
Techninių brėžinių braižymas Palangoje - kurie paslaugos teikėjai yra brangiausi?
✅ Kainos | nuo 10-20 €/h |
✅ Atsiliepimų | 49 |
✅ Darbų pavyzdžių | 536 |
✅ Paslaugų teikėjų | 29 |