- Paslaugos.lt
- Statybos, apdaila
- Matininkai, geodezininkai
- Kadastriniai matavimai
Kadastriniai matavimai
- » Konsultacijos NT įteisinimo klausimais (109)
- » Dokumentų paruošimas pastatų 100% įteisinimui (108)
- » Namo pridavimas (71)
- » Geodezinių nuotraukų sudarymas (64)
- » Kadastriniai matavimai (63)
- » Žemės sklypų matavimas (55)
- » Geodeziniai matavimai (54)
- » Topografinės nuotraukos (52)
- » Kadastrinių bylų rengimas (51)
MB ''Toporanga'' siūlo visas geodezines paslaugas Kauno regione ir visoje Lietuvoje. Topografija, nužymėjimai, kontrolinės, ortofoto, 3d modeliai ir kitos paslaugos.
Teikiame profesionalias Kadastrinių (Geodezinių) matavimų paslaugas. Konsultacijos, kadastriniai matavimai, pertvarkymo projektai, topografija, sklypo ribų nužymėjimai, įvairių schemų sudarymai.
Žemės sklypų padalinimo, formavimo bei amalgamacijos projektai, paskirties keitimas, žemės sklypų kadastriniai matavimai, planai statiniams eksploatuoti, naudojimosi tvarkos bei servitutiniai planai.
Gyvenamųjų namų nebaigtos statybos, baigtos statybos, butų, negyvenamųjų pastatų ar patalpų, kiemo statinių ir inžinerinių statinių kadastrinius matavimai. Jei reikia padedu užpildyti deklaracijas
Gyvenamųjų namų nebaigtos statybos, baigtos statybos, butų, negyvenamųjų pastatų ar patalpų, kiemo statinių kadastriniai matavimai. Jei reikia padedu užpildyti deklaracija
Pridavimas. Pastatų, butų, žemės sklypų kadastriniai matavimai. Topografiniai planai. Tinklų, pastatų kontroliniai planai. Naudojimosi tvarkos planai. Servitutų planai.
Profesionalios paslaugos: žemės ir butų, pastatų kadastriniai matavimai, topografija ir kiti geodezijos darbai, žemėtvarkos ir teritorijų planavimo dokumentų rengimas visoje Lietuvoje. Aukšta kokybė.
Kvalifikacija, patirtis, kruopštumas, rekomendacija, atidumas detalėms, prieinamos kainos kiekvienam ( yra galimybė išsimokėtinai)!
Pastatų kadastriniai matavimai Pastato kontrolinės geodezinės nuotraukos Tinklų išpildomoji Žemės sklypo planas Statybų vadovas Energinis sertifikatas Statybų draudimas Pastatų pridavimas
Riboženklių atstatymas Nužymėjimo darbai Topografija Žemės sklypų kadastriniai matavimai Kontroliniai - išpildomieji matavimai Naudojimosi tvarkos nustatymo planai Servitutų planai
UAB „Geodezinių matavimų projektai“ – konkurencingomis kainomis, teikia platų geodezinių bei kadastrinių matavimų paslaugas.
Mūsų komanda – kvalifikuoti specialistai, turintys ilgametę patirtį ir naudojantys moderniausią įrangą, užtikrinančią paslaugų kokybę. Dirbame greitai, efektyviai ir atsakingai
Topografinės nuotraukos. Inžinerinių tinklų kontrolinės nuotraukos. Kadastriniai matavimai Geodeziniai matavimai Žemės sklypų matavimai. Pastatų pridavimas Taip pat atliekame nestandartinius darbus.
Greitai ir kokybiškai atliekami visi geodezijos ir žemėtvarkos darbai.
Konkurencingomis kainomis, greitai ir kokybiškai, teikiame visas geodezines paslaugas. Dirbame tiek su fiziniais tiek su juridiniais asmenimis.
Mes paruošime visus dokumentus namo ar pastato pridavimui ir suderinsime su ekspertais. Taip pat teikiame visas žemės sklypų ir pastatų matavimo paslaugas darome energinius bei akustinius sertifikatus
Gyvenamųjų, negyvenamųjų pastatų, patalpų, butų, pamatų, inžinerinių statinių, tinklų, susisiekimo komunikacijų kad. matavimai (baigta, nebaigta st.). Pildau paprastąsias registruojamas deklaracijas.
Ieškote patikimų geodezinių paslaugų? MB „Topogeodezija“ yra jūsų sprendimas! Naudojamos pažangiausios matavimų technologijos, užtikrina matavimų tikslumą ir efektyvumą kiekviename projekte!
Geodeziniai matavimai, kadastriniai matavimai, topografinės nuotraukos, pertvarkymo projektai, išpildomosios nuotraukos, sklypų nužymėjimai ir kt. dirbame savaitgaliais
Atliekame visus žemės ir statinių matavimo darbus. Stengiamės pasiūlyti mažiausias rinkos kainas išlaikydami nepriekaištingą kokybę.
Vilniaus m., Vilniaus r., Trakų r. sav., Širvintų r., Ukmergės r., Anykščių r., Kauno r., Prienų r., Birštono r., Jonavos r., Elektrėnų r., Švenčionių r., Utenos r., Molėtų r., ir kt.
Atliekame geodezinius - kadastrinius matavimus. Topografinių planų rengimas; Pastato ašių nužymėjimas; Pastato geodezinės kontrolinės nuotraukos; Namų pridavimas (įteisinimas).
Kadastriniai ir geodeziniai matavimai , riboženklių atstatymas, naudojimosi tvarkos planai, servitutų planai, topografinės nutraukos, inžinerinių tinklų matavimas. projektavimas, ir kt
Geodeziniai matavimai, topografiniai planai, žemės sklypų formavimo ir pertvarkymo projektai, kontrolinės-geodezinės nuotraukos, ribų ir pastatų nužymėjimas vietoje.
Klientų užklausos
Padėti įregistruoti registrų centre.
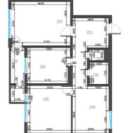
Mažoji Riešė, Vilniaus raj.

Butas: Vilniuje, Fabijoniškių g.
Plotas apie 63m2 (3 kambariai).
Pridedamas buto planas.
Kainos
Kategorija / Paslauga | Kaina nuo | Vidutinė kaina | Paslaugų teikėjai |
---|---|---|---|
Kadastriniai matavimai | 100-200 € | 152 € | Paslaugų teikėjai » |
Topografinės nuotraukos | 120-190 € | 152 € | Paslaugų teikėjai » |
Dokumentų paruošimas pastatų 100% įteisinimui | 50-250 € | 129 € | Paslaugų teikėjai » |
Žemės paskirties keitimas | 50-600 € | 238 € | Paslaugų teikėjai » |
Žemės sklypų matavimas | 100-200 € | 148 € | Paslaugų teikėjai » |
Žemės sklypų projektavimo paslaugos | 450-900 € | 656 € | Paslaugų teikėjai » |
Namo pridavimas | 149-500 € | 246 € | Paslaugų teikėjai » |
Geodezinių nuotraukų sudarymas | 70-150 € | 99 € | Paslaugų teikėjai » |
Dažniausi klausimai
-
Kadastriniai matavimai - kurie paslaugos teikėjai yra geriausi?
-
Kadastriniai matavimai - kurie paslaugos teikėjai pigiausi?
-
Kadastriniai matavimai - kurie paslaugos teikėjai yra brangiausi?
✅ Kainos | nuo 100-200 € |
✅ Atsiliepimų | 378 |
✅ Darbų pavyzdžių | 788 |
✅ Paslaugų teikėjų | 63 |